La présente description de fonctionnement comprend les chapitres suivants :
INTRODUCTION
La gamme de moteurs M62 remplace le moteur M60. Le moteur M62 est une évolution de la gamme de moteurs huit-cylindres BMW mis en service en 1992. A partir de 1/96, il est mis progressivement en service sur les gammes E31, E38 et E39.
Dans ses caractéristiques essentielles, le nouveau M62 est basé sur le M60 :
Le moteur M62 est proposé en deux cylindrées : 3,5 l et 4,4 l.
Il est monté sur les gammes de véhicules suivantes :
Gamme / moteur |
M62B35 |
M62B44 |
|---|---|---|
E31 |
- |
840i |
E38 |
735i |
740i |
E39 |
535i |
540i |

Moteur M62 |
|
Les principaux objectifs de cette évolution ont consisté à respecter les nouvelles réglementations et à améliorer le confort et la qualité.
Le développement s'est effectué selon les priorités suivantes :
Ces objectifs ont été réalisés pour l'essentiel par une augmentation de la cylindrée, la modification de l'équipage mobile et de la commande d'arbre à cames et par le perfectionnement de divers périphériques du moteur, ainsi que grâce à l'adoption de la nouvelle électronique numérique de gestion du moteur DME M5.2.
Pour des raisons de production (capacités du fabricant), le carter de vilebrequin est fabriqué en deux alliages d'aluminium différents.
Les carters de vilebrequin des moteurs destinés aux marchés où la qualité du carburant est critique (fort pourcentage de soufre) sont fabriqués en Alusil (idem M73). Il s'agit des moteurs destinés aux pays
Comme pour le moteur M73, le carter de vilebrequin de ces moteurs est fabriqué par coulage en coquille d'un alliage d'aluminium (Alusil). Les surfaces de glissement des cylindres ne sont pas revêtues. La qualité de ces surfaces est obtenue pendant la fabrication grâce à un procédé d'attaque chimique.
Les carters de vilebrequin des moteurs M62 destinés à tous les autres marchés sont fabriqués dans l'alliage d'aluminium déjà utilisé pour le moteur M60 (AlSi9Cu3). Les surfaces de glissement des cylindres de ces carters de vilebrequin sont revêtues d'une dispersion de nickel (Nikasil)
Extérieurement, le signe distinctif entre les deux types de carter (alliages d'aluminium) est le numéro de référence. A ces deux types de matériaux, correspondent des pistons dotés d'enductions de surface spécifiques (voir chapitre pistons)
En dehors des procédés de fabrication, la structure de principe des carters de vilebrequin est identique.
Comme c'était déjà le cas pour les M52 et M73, le M62 est équipé d'un refroidissement des pistons par buses en crochet. Ces buses sont vissées directement dans les semelles de paliers. Grâce à ces buses, le jet d'huile est dirigé sur le fond du piston, sans interruption pendant toute la course.
Le montage et le démontage des buses en crochet sont différents des moteurs M52 / M73. Respectez le manuel de réparation !

M62 Bloc-moteur avec pistons |
|
La course ayant été augmentée, le vilebrequin est nouveau pour les deux cylindrées. Il est à 5 paliers, comme celui du M60. Les manetons sont décalés de 90 o . Six contre-poids assurent la stabilité de fonctionnement.
Pour les deux cylindrées du M62, le vilebrequin est en acier forgé. Un alésage central sert à réduire le poids.
Aux deux types d'alliage d'aluminium des carters de vilebrequin (en fonction des pays) correspondent des pistons et segments spécifiques, dotés de revêtements de surface différents. Les pistons destinés aux carters de vilebrequin en Alusil sont revêtus de fer. Les pistons se reconnaissent par leur numéro de référence.
En cas de réparation, lorsqu'il faut changer un piston, il convient, en particulier pour les véhicules provenant de marchés étrangers, de veiller à poser des pistons et segments correspondant bien au numéro de référence du carter de vilebrequin.
En dehors de leur enduction de surface, les pistons sont identiques du point de vue de leur structure (piston caisson).
Les pistons sont conçus pour fonctionner avec du carburant ROZ 95. Le taux de compression est de 10,0 : 1 pour les deux cylindrées.
Les bielles sont identiques à celles du moteur M60.
Le M60 a été le premier moteur doté de bielles en métal fritté qui équipent donc aussi le M62. Outre leur faible poids (masses en mouvement), ces bielles offrent une résistance élevée pendant toute la durée de vie du moteur.
Lors de leur fabrication, la bielle proprement dite et le couvercle du grand pied de bielle sont séparés par cassure. Ce procédé évite le centrage par douilles d'ajustement, habituellement nécessaire lors du montage. Le centrage s'effectue au moyen de la structure de rupture et le guidage des vis de bielle. Le tarage (points de couleur ou codes pour la classe de poids) n'est pas nécessaire en raison de la grande précision de fabrication du processus de forgeage par frittage.
Le moteur M62 comporte de nouvelles vis à tige allégée pour le boulonnage du pied de bielle sur le vilebrequin.
Sur les véhicules à boîte automatique, le volant est en acier monobloc. Sur les versions à boîte manuelle, il s'agit d'un volant à deux masses et amortissement hydraulique (ZMS).
Sur les deux versions, la denture d'incrémentation du capteur de vilebrequin se trouve sur le volant, comme pour le moteur M73. Le capteur inductif d'impulsions est monté dans la cloche de la boîte de vitesses et d'embrayage. Le nouveau point de montage de la couronne d'impulsions sur le volant permet au calculateur DME de détecter les ratés d'allumage.

Volant avec denture d'incrémentation |
|
Sur les moteurs précédents, la couronne d'impulsions était montée sur l'amortisseur de vibrations de rotation, avec un amortissement radial assuré par un élément en caoutchouc vulcanisé, ce qui empêchait la détection des irrégularités de rotation du moteur. ce qui empêchait la détection des irrégularités de rotation du moteur.
Sur le volant, la couronne d'impulsions est montée sur le vilebrequin par une liaison rigide, sans élément amortisseur.
Les irrégularités de rotation du moteur, provoquées par exemple par des ratés d'allumage, sont ainsi transmises non amorties à la couronne d'impulsions. Désormais, grâce au capteur inductif d'impulsions, il est possible de détecter, outre le régime-moteur et la marque de référence, les ratés provoqués par des anomalies dans le système d'allumage ou d'injection. Cette détection des ratés est une exigence de l'OBD II (US).
Le chapitre DME ci-après contient une description détaillée du mode de fonctionnement de la détection des ratés.
Le carter d'huile est réalisé en deux parties, comme sur l'E38 M60. La partie supérieure est en fonte d'aluminium sous pression. La partie inférieure est fabriquée en tôle à double paroi.
Les capacités d'huile sont identiques à celles du moteur M60.
Les capacités d'huile pour les deux cylindrées du moteur M62 sont les suivantes :
Sur la jauge, la différence entre les marques 'MIN' et 'MAX' s'élève à 1,5 l.
Le carter et le couvercle de la pompe à huile du M62 sont en fonte d'aluminium sous pression (magnésium sur M60). Sa conception et son entraînement sont identiques à celle du M60.
Comme sur l'E38 M60 et sur le moteur M73, le M62 est doté d'un capteur thermique de niveau d'huile.
Ce capteur de niveau d'huile envoie au module de check-control un signal à modulation de largeur d'impulsion (E31 : CCM ; E38/E39 : LCM).
Le rapport cyclique de ce signal indique le niveau d'huile dans le moteur. Lorsqu'un seuil mémorisé dans le calculateur CCM/ LCM n'est plus atteint, le conducteur reçoit le message "Contrôler niveau d'huile moteur".
Vous trouverez dans le manuel de l'instructeur Électronique du combiné d'instruments IKE /bus I E38.
Le filtre à huile est celui du M62, mais le boîtier est fixé à la carrosserie
Comme sur le M60, le dégazage du carter de vilebrequin est assuré par un système à pression régulée. Le dégazage est d'une conception identique à celui du M60.
Les gaz de fuite générés pendant le fonctionnement du moteur se regroupent dans le carter de vilebrequin.
Le système d'admission est relié au carter de vilebrequin par un détendeur intégré dans le couvercle. La dépression générée provoque l'aspiration des gaz de fuite dans le carter de vilebrequin par l'intermédiaire d'un séparateur à cyclone.
Sur les parois froides du séparateur, les vapeurs huileuses contenues dans les gaz se condensent et sont amenées dans le carter d'huile par une conduite de retour. Les composants gazeux résiduels sont amenés par un tuyau distributeur dans le système d'admission de la chambre mélangeuse, dans la tubulure du papillon.

Détendeur du système d'admission |
|
Les culasses à 4 soupapes par cylindre du M62 sont d'une conception proche de celles du M60, sans pour autant être identiques. Pour les distinguer de l'extérieur, les marques M60 ou M62 ainsi que la version de cylindrée (B35 par exemple) sont coulées dans les ébauches.

Culasse M62 |
|
Joint de culasse
Le joint de culasse est sans amiante. Contrairement au joint de culasse du M60, il ne couvre plus la zone du couvercle du carter de chaîne. Dans cette zone, se trouve un nouveau joint moulé en caoutchouc (voir couvercle du carter de chaîne). Pour cette raison, le marquage du joint de culasse (3,5l / 4;4l) est décalé vers l'arrière.
Couvre-culasse
Le couvre-culasse est fabriqué en magnésium.
Il faut d'éviter d'endommager la surface des couvre-culasse en magnésium, car les détériorations peuvent engendrer un risque de corrosion.
Chaque culasse dispose de deux arbres à cames en tête. Il s'agit d'arbres pleins coulés en coquille, comme ceux du M60.
La position angulaire du dièdre de repérage des arbres à cames a été adaptée aux outils de repérage du M60. Ces derniers sont donc utilisables aussi pour régler les arbres à cames du M62.

Culasse avec arbres à cames et conduites d'huile |
|
Marquage des arbres à cames
Comme sur le M60, le marquage des arbres à cames est composé d'une séquence de chiffres et lettres gravés (E1-4, A1-4, E5-8, A5-5).
La distribution a été conçue dans le but prioritaire de réduire les masses en mouvement. Les masses des poussoirs hydrauliques, des ressorts de soupape et de la cuvette supérieure de ressort ont été considérablement abaissées, de sorte que les moments de frottement et le bruit ont diminué. .
Soupapes
Les soupapes ont les mêmes dimensions et le même poids que celles du M60 (même référence que M60).
Poussoirs à coupelle HVA
Le diamètre des poussoirs à coupelle HVA a été diminué (M60 : (35mm / M62 : (33mm). Le poids a ainsi été abaissé de 32g à 48g (M60 : 80g) (même référence que M52). Il s'agit de poussoirs à coupelle INA, à autopurge et à surface de glissement des cames au nitrure de carbone.
Ressorts de soupapes
L'emploi de ressorts coniques a permis de réduire encore les masses en mouvement.
Coupelles de soupape
Le poids des coupelles supérieures a également été optimisé (même référence que M44 et M52). La coupelle inférieure est la même référence que le M52.
L'ensemble de ces améliorations entraîne un allègement considérable de la distribution, comme le montre le tableau ci-dessous.
|
M60B40 |
M62B44 |
|---|---|---|
soupape d'admission (g) |
49 |
49 |
soupape d'échappement (g) |
48 |
48 |
poussoirs à coupelle HVA (g) |
80 |
48 |
ressort(s) de soupape (g) |
36 |
12 |
ressort de soupape supérieur (g) |
15 |
8 |
cônes de soupape (g) |
1 |
1 |
admission, par soupape (g) |
181 |
118 |
échappement, par soupape (g) |
180 |
117 |
Entraînement primaire
Pour une optimisation fine concernant le bruit, le poids et les frottements, l'entraînement primaire du vilebrequin à l'arbre à cames d'admission est assuré par une chaîne à rouleaux simples (M60 : chaîne à doubles rouleaux). Les pignons de chaîne primaires sont caoutchoutées pour que la chaîne s'engrène avec le moins de bruit possible.
Capteur d'arbre à cames
Sur le pignon de chaîne de l'arbre à cames d'admission des cylindres 1 à 4 se trouve une couronne d'impulsions à 4 repères, servant à détecter le 1er cylindre (DME). A la différence du moteur M60 doté d'un capteur inductif, le capteur d'arbres à came du moteur M62 est un capteur à effet Hall.
Ce nouveau capteur d'arbre à cames a obligé à redéfinir la position de la couronne d'impulsions lors du montage de l'entraînement de l'arbre à cames. La couronne d'impulsions du capteur un marquage (encoche). Lors du montage, il faut faire attention à ce que cette encoche soit dirigée vers le haut dans le sens axial des cylindres. Reportez-vous pour plus de détails au manuel de réparation.

Capteur d'arbre à cames M62 |
|
Rail de renvoi de la chaîne primaire
Sur le M62, la roue de renvoi de l'espace en V a été remplacée par un rail de renvoi en aluminium, sur lequel est clipé une piste en matière synthétique. La chaîne est tendue par un tendeur hydraulique à limiteur de pression.

Moteur M62 avec rail de renvoi pour entraînement primaire |
|
Du fait de l'emploi d'un rail de renvoi (à la place d'une roue de renvoi), les couples de rotation à appliquer lors de la mise en précontrainte du rail de serrage pour le montage de l'entraînement primaire ont été modifiés (voir manuel de réparation).
Entraînement secondaire
L'entraînement secondaire est également assuré par une chaîne à simples rouleaux. Il agit entre les arbres à cames d'admission et les arbres à cames d'échappement.
Un tendeur hydraulique de chaîne est intégré sur la culasse

Culasse M62 avec chaînes à simples rouleaux |
|
Comme sur le M60, les couvercles de carters de chaîne sont vissés sur les culasses et sur le carter de vilebrequin central.
L'étanchéité est nouvelle :
L'étanchéité des deux couvercles supérieurs de carters de chaîne par rapport à la culasse et au couvercle inférieur de carter de chaîne est assurée par un joint moulé en caoutchouc. Ce dernier offre un meilleur rattrapage des tolérances et un découplage acoustique entre le couvercle inférieur et le couvercle supérieur du carter de chaîne.
Le joint ayant été modifié, la procédure de montage du couvercle supérieur du carter de chaîne est nouvelle afin de garantir une efficacité optimale de l'étanchéité. Voir instruction de montage dans le manuel de réparation !
L'étanchéité entre le couvercle inférieur du carter de chaîne et le carter de vilebrequin est assurée par un joint plat.
La tubulure de papillon du M62 a été redessinée. Une chambre mélangeuse a été réalisée au niveau de l'embouchure de la régulation de l'air de ralenti (ZWD 2).
Cette chambre mélangeuse est constituée d'une plaque de tôle placée entre le système d'admission et le papillon, et dotée d'orifices traversants accordés avec précision les uns aux autres.
Dans cette chambre mélangeuse, s'écoulent l'air de l'actionneur de ralenti, l'air de balayage et les gaz de fuite (à travers le tuyau distributeur) qui vont du détendeur de dégazage du carter de vilebrequin, à la tubulure de papillon. Là, les gaz de fuite et l'air de balayage du filtre à charbon actif se mélangent à l'air frais aspiré. Résultat : une sollicitation uniforme de tous les cylindres par les gaz de fuite, et donc une qualité uniforme du ralenti.
Le système d'admission du M62 est en plastique monobloc. Il correspond à celui du M60B40.
Le détendeur du dégazage du carter de vilebrequin est monté directement sur le système d'admission. A partir du détendeur, un tuyau distributeur passe à travers le système d'admission, allant de la chambre mélangeuse au papillon afin de répartir les gaz de fuite uniformément sur tous les cylindres.
Un raccordement pour le Master-Vac du servofrein se trouve dans le couvercle du système d'admission.
Comme la plupart des moteurs BMW, le M62 est doté d'une distribution statique d'allumage.
Bobines d'allumage
Le moteur M62 est doté de nouvelles bobines d'allumage. Ces dernières sont identiques à celles du moteur M52. Par rapport aux bobines antérieures, elles sont plus petites et plus légères, grâce à une modification de leur conception mécanique.

Comparaison des bobines d'allumage M60 - M62 |
|
Sur tous les véhicules équipés du moteur M62, l'alternateur est du type compact (140A) à aspiration d'air frais.
Pour les véhicules E31 (deux batteries dans le coffre !) , dont les besoins en énergie sont supérieurs et dont le courant de repos est donc augmenté (options téléphone ou chauffage d'appoint par exemple), il s'agit toujours d'un alternateur de 220A refroidi par eau
Les modèles E39 dotés de l'option climatisation comportent un ventilateur électrique additionnel à 3 vitesses.
Sur les modèles E31 et E38, ce ventilateur additionnel est monté d'office puisque ces voitures sont équipées en série de la climatisation.
Pour abaisser le niveau de bruit, une 3ème vitesse a été ajoutée. Les critères de mise en marche des différentes vitesses ont été redéfinies.
Critères d'enclenchement
Mise en marche |
vitesse I |
-embrayage du compresseur actif et température extérieure > 10 o C. -température d'eau > 91 o C. |
Mise en marche |
vitesse II |
-manocontacteur pressostat fermé > 21 bar |
Mise en marche |
vitesse III |
-température d'eau > 104 o C. (activation par double contacteur de température) |
arrêt |
vitesse IV |
- embrayage du compresseur inactif -température extérieure < 8 o C. -température d'eau < 91 o C |
Comme sur le M60, le démarreur de toutes les versions est du type 12 V à réducteur (marque Bosch) et a une puissance de 1,7 kW.
Les câbles et leur tracé vers le point d'appui de charge de la batterie sont nouveaux sur les séries E38 et E39. Le câble B+ passe sous le moteur jusqu'à l'alternateur et au point d'appui de charge de la batterie.
Le point d'appui pour la charge de la batterie se trouve sur le couvercle du carter de chaîne de la rangée de cylindres 5 - 8.
Sur l'E31, le point d'appui pour la charge de la batterie est toujours sur le dôme de la jambe de suspension.
Du collecteur au tube final, le système d'échappement est intégralement en inox. De plus, de la bride de collecteur jusqu'au bout, il est fabriqué d'une seule pièce.
Collecteurs d'échappement
Comme sur le M60, le M62 est doté de collecteurs en tôle à isolation par fente d'air.
Pot catalytique
Les tuyaux antérieurs sont également des tuyaux doubles à isolation par fente d'air.
Le pot catalytique est à double flux et est doté, pour chaque ligne, de 2 monolithes céramiques à revêtement trimétallique (platine, palladium, rhodium). Pour que la contre-pression des gaz soit aussi basse que possible, les monolithes ont la même section que celle du M73.
La structure de principe du circuit correspond à celle du moteur M60.
Pompe à eau
La conception de la pompe à eau est identique à celle du moteur M60. Le carter est en fonte d'Al sous pression et est vissé sur le couvercle du carter de chaîne. Contrairement au M60, la double sonde de température du liquide est montée dans le carter de la pompe à eau. Cette double sonde se trouve à l'endroit où le liquide de refroidissement sort du moteur.

Vue détaillée de la pompe à eau avec double sonde de température |
|
Radiateur d'eau
Le radiateur du moteur du M62 est de conception identique à celui du moteur M60.
En fonction des pays, il est prévu en plus un radiateur d'huile-moteur.
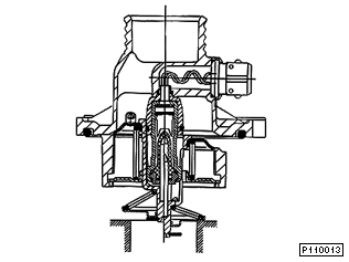
Le thermostat est intégré dans le carter de la pompe à eau.
Dans l'E31 à moteur M62, un thermostat conventionnel à vanne de purge intégrée est monté comme le M60. Il s'ouvre à 85 o C.
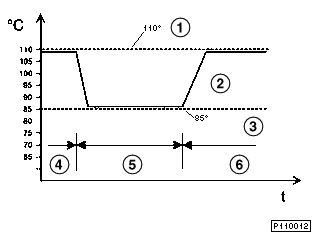
Sur les séries E38 et E39 à moteur M62, on a prévu un nouveau thermostat cartographique.
Fonctionnement d'un thermostat classique
La régulation du refroidissement moteur par un thermostat classique s'effectue exclusivement par la température du liquide. Cette régulation connaît trois états :
Dans cette plage de marche (plage de régulation du thermostat), il est désormais possible, au moyen du thermostat cartographique, d'influencer de manière ciblée la température du liquide de refroidissement.
Il est donc possible, dans la plage de charge partielle du moteur, d'obtenir une température plus élevée du liquide. Dans ce cas, la combustion est meilleure de sorte que la consommation diminue et les rejets de polluants sont moins élevés.
A pleine charge, ces températures élevées généreraient des inconvénients (abaissement de l'angle de came à cause du cliquetis). C'est pourquoi, grâce au thermostat cartographique, on établit intentionnellement une température moins élevée pour le liquide de refroidissement.

|
Caractéristique de régulation du refroidissement cartographique |
|---|---|
1 |
Courbe caractéristique d'un thermostat 110 o C |
2 |
Courbe caractéristique d'un thermostat cartographique |
3 |
Courbe caractéristique d'un thermostat 85 o C |
4 |
charge partielle |
5 |
pleine charge |
6 |
charge partielle |
BMW est donc le premier constructeur automobile du monde à utiliser un thermostat cartographique sur un moteur de grande série afin d'obtenir une régulation ciblée de la température du liquide de refroidissement. Ce thermostat permet une augmentation contrôlée de la température du liquide à charge partielle. Cette hausse entraîne une diminution de la consommation dans ces états de marche du moteur. Ce thermostat est commandé par la DME M5.2 selon une cartographie prédéfinie.
Cette cartographie est basée sur les facteurs :
Constitution du thermostat cartographique
Le thermostat cartographique est un thermostat intégral, c'est-à-dire que le thermostat et son couvercle forment un ensemble.
Sur le principe, le thermostat cartographique est de conception mécanique identique à un thermostat classique. De plus, une résistance chauffante est intégrée dans l'élément dilatable (élément en cire).

Vue en coupe d'un thermostat cartographique |
|
Le couvercle du thermostat cartographique est en fonte d'aluminium sous pression. Le couvercle intègre le branchement électrique pour la résistance chauffante reliée à l'élément dilatable du thermostat.

Thermostat cartographique à branchement él. pour résistance chauffante |
|
Fonctionnement du thermostat cartographique
Le thermostat cartographique est réglé de manière à ouvrir sans intervention du chauffage intégré, lorsque le liquide atteint une température de 103 o C (entrée du moteur). A cause de l'échauffement du liquide de refroidissement, dans le moteur, la température mesurée à la sortie du moteur (point de montage de la sonde de température pour DME et affichage combiné) s'élève à environ 110 o C dans cette situation de marche. Il s'agit de la température de service du moteur, à laquelle le thermostat cartographique commence à ouvrir sans intervention de la régulation.
En cas d'intervention par régulation du calculateur DME, la résistance chauffante intégrée au thermostat est parcourue par un courant (12V). Le chauffage de l'élément dilatable provoque l'ouverture du thermostat à des températures du liquide plus basses que ce ne serait le cas sans le chauffage additionnel (plage de régulation du thermostat : 80 o C - 103 o C).

1 |
Course d'ouverture du thermostat |
2 |
Température du liquide de refroidissement |
3 |
Excitation de la résistance chauffante avec du courant 12 V |
4 |
Excitation de la résistance chauffante avec du courant 0 V |
Lorsque la température du liquide de refroidissement dépasse 113 o C à la sortie du moteur, le chauffage du thermostat cartographique est activé par la DME indépendamment des autres paramètres.
Diagnostic
Le câble de liaison et le fonctionnement du thermostat cartographique sont surveillés par le diagnostic du calculateur DME. Les défauts sont enregistrés dans la mémoire de défauts du calculateur DME.
Affichage de la température du liquide de refroidissement
La caractéristique d'indication de la température du liquide de refroidissement sur le combiné a été adaptée au niveau de température supérieur du moteur.
Sur le combiné, l'aiguille de l'indicateur se trouve en position centrale lorsque la température du liquide de refroidissement se situe entre
75 o C et 113 o C
.
La commande électronique numérique moteur DME M5.2 de marque Bosch, déjà utilisée sur le M73, équipe aussi le moteur M62. Elle remplace la DME M3.3 du moteur M60
Cette nouvelle version de la DME a été développée pour tenir compte des objectifs décrits en introduction et, en particulier, des nouvelles réglementations américaines (OBD II par exemple). Les normes californiennes, en particulier, représentent des contraintes très sévères en matière d'émissions polluantes.
Ces fonctions CARB (Californian Air Ressource Board) sont réalisées dans la DME M5.2.
Les véhicules destinés au marché américain sont dotés d'une interface de diagnostic embarqué (OBD), normalisée pour tous les constructeurs. Cette interface permet aux autorités de surveillance de la circulation de lire à tout moment des informations concernant l'OBD dans la mémoire de défauts de la DME, grâce au câble de diagnostic. L'accès à cette partie limitée de la mémoire de défauts est autorisé par un codage interne au calculateur DME.
Voici les principales caractéristiques de la DME M5.2 :
Pour contrôler le respect des normes d'échappement, les réglementations californiennes et US exigent une surveillance de tous les composants concernés pendant la marche. A cet effet, il a fallu réaliser un autodiagnostic plus performant qui inclut, entre autres, la détection des ratés d'allumage. Si une anomalie se produit en lien avec l'échappement, le voyant 'Check Engine' du combiné sera activé par la DME sur les véhicules US. Elle signale au conducteur que la gestion du moteur a détecté un défaut ayant une influence sur les émissions et devant donc être rapidement réparée dans un garage.
Les principales fonctions du diagnostic OBDII sont :
Un autre composant de l'OBD II est une interface normalisée pour tous les constructeurs automobiles, et permettant aux autorités américaines de surveillance de la circulation de lire dans le calculateur, au moyen d'un 'Scan-Tool', les anomalies concernant l'échappement. L'accès aux données contenues dans la mémoire de défauts par ces autorités est limité aux anomalies concernant les gaz d'échappement.
A l'exception des fonctions
toutes les fonctions de surveillance concernant l'OBD II sont réalisées aussi dans les calculateurs DME 5.2 qui ne sont pas destinés au marché américain. L'interface normalisée OBD II, qui permet aux autorités d'accéder à la mémoire de défauts, est également montée uniquement sur les véhicules US.
A l'aide du générateur inductif d'impulsions, la vitesse de rotation du moteur (régime) est mesurée sur la couronne d'impulsions. En plus de l'acquisition du régime, le M62 (de la même façon que le M73) comporte une détection des ratés d'allumage.
Pour détecter les ratés d'allumage, la couronne d'impulsions est divisée, à l'intérieur du calculateur, en quatre segments correspondant à l'intervalle d'allumage (moteur 8 cylindres : 4 allumages par tour de vilebrequin).
Dans le calculateur, la durée de période (T) des différents segments de la couronne d'impulsions est mesurée. Si la combustion se déroule normalement dans tous les cylindres, la période est identique pour tous les segments de la roue (T1 = T2 = T3 = T4).
En revanche, si une anomalie (raté d'allumage) se produit sur un cylindre, la période correspondant à ce cylindre est prolongée de fractions de millisecondes (voir figure : T3> T1, T2, T4). Ces durées de segment font l'objet d'une analyse statistique dans le calculateur.

|
Schéma de principe de la détection des ratés d'allumage |
|---|---|
1 |
Marche du moteur OK |
2 |
Raté d'allumage dans la partie T3 |
Pour chaque point de la cartographie, les irrégularités maximales admissibles de marche, c'est-à-dire la fluctuation de la période d'un segment, sont conservées en fonction du régime, de la charge et de la température du moteur.
En cas de dépassement de ces valeurs admissibles, les cylindres considérés comme défectueux sont conservés dans la mémoire de défauts. Dans ce cas, sur les véhicules US, le voyant 'Check Engine' s'allume.
Par ailleurs, l'injection des cylindres concernés est coupée afin de protéger le pot catalytique d'une surchauffe.
Adaptation
Les tolérances de fabrication de la couronne d'impulsions pourraient provoquer des dysfonctionnement de cette détection des ratés d'allumage. Pour cette raison, la DME effectue automatiquement une adaptation.
Les tolérances de fabrication de la couronne d'impulsions sont adaptées en phases de décélération du moteur sans allumage ni injection, car dans ces phases, le moteur ne produit pas d'irrégularités de rotation dues à des processus de combustion.
Remarque pour l'entretien :
Après remplacement du volant, du capteur d'incrémentation ou du calculateur DME, il convient de vérifier dans le cadre d'un essai de roulage qu'une phase de décélération plus longue du moteur (10 s environ) est respectée afin de permettre au calculateur DME de s'adapter au volant.
La transmission numérique des données entre les calculateurs suivants s'effectue via le bus CAN :
Pour les deux cylindrées, les injecteurs utilisés sont du type à jet conique (idem M60) et sont de marque Bosch et Lucas.
Comme le M60, le M62 est doté d'un débitmètre d'air à film chaud.
Comme sur le moteur M60, la régulation du ralenti du M62 est assurée par un actuateur rotatif à deux enroulements (ZWD 5). L'air aspiré au ralenti par le ZWD 5 débouche dans la chambre mélangeuse du papillon.
Chacun des deux pots catalytiques est précédé d'une sonde lambda. Pour respecter les normes OBD II, les modèles M62 destinés au marché américain reçoivent en plus une seconde sonde lambda (sonde monitrice) après chaque pot catalytique. Les sondes lambda sont les mêmes que celles du moteur M73 (type : Bosch LSH 25).
Le moteur M62 est lui aussi doté d'une régulation anticliquetis qui empêche l'apparition du cliquetis pendant la marche du moteur. qui empêche l'apparition du cliquetis pendant la marche du moteur. Lorsqu'un risque de cliquetis apparaît, il décale autant que nécessaire dans le sens "retard" le point d'allumage du ou des cylindres concernés.
Les 4 détecteurs de cliquetis sont fixés sur la chemise du bloc-moteur, entre les deux rangées de cylindres. Ils sont disposés de façon que chaque capteur surveille les deux cylindres voisins. Les détecteurs de cliquetis sont identiques à ceux du M60.
Le M62 est doté d'une double sonde de température (idem M52). Elle sert à acquérir la température du liquide de refroidissement aussi bien pour le système de contrôle/commande du moteur que pour le téléthermomètre du combiné d'instruments. A cet effet, la sonde contient deux pastilles CTN isolées galvaniquement et affectées de caractéristiques de résistance différentes.
La double sonde de température est placée en face frontale du moteur, dans le carter de la pompe à eau
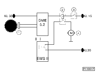
La fonction démarrage automatique améliore le confort du conducteur pendant le démarrage. Pour lancer le moteur, il suffit de tourner brièvement la clé de contact vers la position 'Start' (borne 50). Après réception du signal borne 50 dans le calculateur DME, le moteur du démarreur est activé jusqu'à ce que le moteur tourne. Tous les véhicules E38 dotés de moteurs M73 sont déjà équipés de cette fonction.
Aujourd'hui, tous les véhicules E38 et E39 à moteur M62, équipés de l'option boîte de vitesses automatique sont dotés de la fonction démarrage automatique.
Fonction
Dans le système de démarrage automatique, le relais du démarreur n'est plus activé directement par la borne 50. La borne 50 sert seulement de signal d'entrée dans la DME 5.2.
A l'arrivée du signal de démarrage (borne 50) dans le calculateur DME 5.2 et sous réserve que simultanément le calculateur EWS reconnaisse le code aléatoire, la DME pilote le relais du démarreur, via la sortie 'démarrage automatique'. Il faut pour ce faire que le levier sélecteur de la boîte soit en position 'P' ou 'N'.
Le moteur du démarreur est activé via le relais jusqu'à ce que la marche du moteur soit détectée par l'intermédiaire du capteur de vilebrequin.
La marche du moteur ('Moteur tourne') est détectée lorsque, pendant le processus de démarrage, le régime-moteur dépasse brièvement
.
Dès détection du signal de marche du moteur, le relais du démarreur est coupé par le calculateur DME. Si le démarrage du moteur se solde par un échec, le processus de démarrage automatique est interrompu au bout de 20 secondes par un signal de masse émis par la DME.

|
Schéma fonctionnel du 'démarrage automatique' |
|---|---|
1 |
Capteur de vilebrequin |
2 |
Relais du démarreur |
3 |
contacteur boîte de vitesses automatique (L2) |
Tous les véhicules à moteur M62 sont équipés en série de l'ASC+T. Pour réaliser les fonctions ASC, le moteur M62 reçoit un prépapillon (idem M60) qui, en cas de besoin, peut être déplacé par le moteur ADS II, au moyen d'une commande à câble.
Le moteur ADS II est commandé par le calculateur ABS/ASC. Les autres interventions de l'ASC, comme la variation de l'angle de came, et la suspension de l'allumage et de l'injection, sont prises en charge par le calculateur DME.
Pour réaliser la régulation du couple d'entraînement du moteur (MSR), on a recours à l'actionneur de ralenti (ZWD 5) du moteur M62. L'actionneur de ralenti s'ouvre de manière contrôlée lorsque la régulation du couple d'entraînement du moteur (MSR) est activée. A cet effet, il reçoit un signal à modulation de largeur d'impulsion de la DME.
Les informations nécessaires pour piloter les fonctions ASC dans le calculateur DME sont transmises par le bus CAN.