Pompe à eau
Le carter est en fonte d'aluminium sous pression ou en matière synthétique et est vissé sur le couvercle du carter de distribution. Dans le carter de la pompe à eau, se trouve la sonde double de température pour le liquide de refroidissement. Cette double sonde se trouve à l'endroit où le liquide de refroidissement sort du moteur.

Vue détaillée de la pompe à eau avec double sonde de température |
|
Radiateur du moteur
En fonction des pays, il est prévu en plus un radiateur d'huile-moteur.
La régulation du refroidissement moteur par un thermostat classique s'effectue exclusivement par la température du liquide. Cette régulation connaît trois états :
Dans cette plage de marche (plage de régulation du thermostat), il est désormais possible, au moyen du thermostat cartographique, d'influencer de manière ciblée la température du liquide de refroidissement.
Il est donc possible, dans la plage de charge partielle du moteur, d'obtenir une température plus élevée du liquide. Dans ce cas, la combustion est meilleure de sorte que la consommation diminue et les rejets de polluants sont moins élevés.
A pleine charge, ces températures élevées généreraient des inconvénients (abaissement de l'angle de came à cause du cliquetis). C'est pourquoi, grâce au thermostat cartographique, on établit intentionnellement une température moins élevée pour le liquide de refroidissement.

|
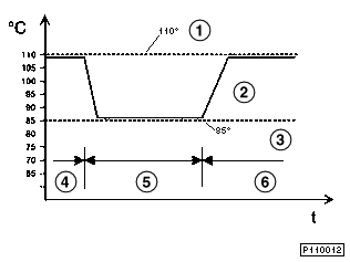
Caractéristique de régulation du refroidissement cartographique |
|---|---|
1 |
Courbe caractéristique d'un thermostat 110o C |
2 |
Courbe caractéristique d'un thermostat cartographique |
3 |
Courbe caractéristique d'un thermostat 85o C |
4 |
Charge partielle |
5 |
Pleine charge |
6 |
Charge partielle |
Ce thermostat permet une augmentation contrôlée de la température du liquide à charge partielle. Cette hausse entraîne une diminution de la consommation dans ces états de marche du moteur. La régulation de ce thermostat cartographique est assurée par le boîtier électronique du moteur, en fonction d'une cartographie.
Cette cartographie est basée sur les facteurs :
Description du thermostat cartographique
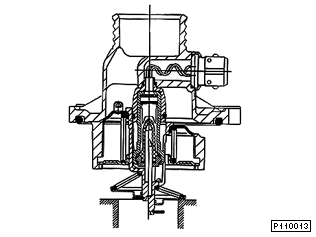
Le thermostat cartographique est un thermostat intégral, c'est-à-dire que le thermostat et son couvercle forment un ensemble.
Sur le principe, le thermostat cartographique est de conception mécanique identique à un thermostat classique. De plus, une résistance chauffante est intégrée dans l'élément dilatable (élément en cire).

Vue en coupe d'un thermostat cartographique |
|
Le couvercle du thermostat cartographique est en fonte d'aluminium sous pression. Le couvercle intègre le branchement électrique pour la résistance chauffante reliée à l'élément dilatable du thermostat.

Thermostat cartographique à branchement él. pour résistance chauffante |
|
Fonctionnement du thermostat cartographique
Le thermostat cartographique est réglé de manière à ouvrir sans intervention du chauffage intégré, lorsque le liquide atteint une température de 103oC (entrée du moteur). A cause de l'échauffement du liquide de refroidissement, dans le moteur, la température mesurée à la sortie du moteur (point de montage de la sonde de température pour DME et affichage combiné) s'élève à environ 110o C dans cette situation de marche. Il s'agit de la température de service du moteur, à laquelle le thermostat cartographique commence à ouvrir sans intervention de la régulation.
En cas d'intervention par régulation du calculateur DME, la résistance chauffante intégrée au thermostat est parcourue par un courant (12V). Le chauffage de l'élément dilatable provoque l'ouverture du thermostat à des températures du liquide plus basses que ce ne serait le cas sans le chauffage additionnel (plage de régulation du thermostat : 80oC - 103oC).

1 |
Course d'ouverture du thermostat |
2 |
Température du liquide de refroidissement |
3 |
Excitation de la résistance chauffante avec du courant 12 V |
4 |
Excitation de la résistance chauffante avec du courant 0 V |
Lorsque la température du liquide de refroidissement dépasse 113oC à la sortie du moteur, le chauffage du thermostat cartographique est activé par le DME indépendamment des autres paramètres.
Diagnostic
Le câble de liaison et le fonctionnement du thermostat cartographique sont surveillés par le diagnostic du calculateur DME. Les défauts sont enregistrés dans la mémoire de défauts du calculateur DME.
Indicateur de température du liquide de refroidissement
La caractéristique d'indication de la température du liquide de refroidissement sur le combiné a été adaptée au niveau de température supérieur du moteur.
Sur le combiné, l'aiguille de l'indicateur se trouve en position centrale lorsque la température du liquide de refroidissement se situe entre
75oC et 113o C
.