Водяная помпа
Корпус сделан из литого алюминия или пластмассы и привинчен к крышке ГРМ. В корпусе водяной помпы установлен сдвоенный датчик для определения температуры охлаждающей жидкости. Он находится в месте выхода охлаждающей жидкости из двигателя.

Деталировка водяной помпы со сдвоенным термодатчиком |
|
Радиатор двигателя
В исполнениях для различных стран дополнительно предусмотрена установка радиатора охлаждения масла двигателя.
Регулирование охлаждения двигателя с помощью обычного термостата определяется исключительно температурой охлаждающей жидкости. Такое регулирование можно разделить на три рабочих диапазона:
В этом рабочем диапазоне (диапазоне регулирования термостатом) теперь можно с помощью программируемого термостата целенаправленно влиять на температуру охлаждающей жидкости.
Благодаря этому можно при частичных нагрузках двигателя устанавливать более высокую температуру охлаждающей жидкости. При более высоких рабочих температурах при частичных нагрузках повышается качество сгорания, и в результате достигается уменьшение расхода топлива и выброса вредных веществ.
При полной нагрузке более высокие рабочие температуры оказали бы отрицательное воздействие (уменьшение угла опережения зажигания из-за детонации). Поэтому при полной нагрузке с помощью программируемого термостата целенаправленно устанавливаются более низкие температуры охлаждающей жидкости.

|
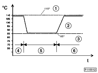
Регулировочная характеристика программируемого охлаждения |
|---|---|
1 |
Графическая характеристика термостата на 110o C |
2 |
Графическая характеристика программируемого термостата |
3 |
Графическая характеристика термостата на 85o C |
4 |
Диапазон частичных нагрузок |
5 |
Диапазон полной нагрузки |
6 |
Диапазон частичных нагрузок |
С помощью этого термостата возможно целенаправленное увеличение температуры охлаждающей жидкости при частичных нагрузках. Благодаря увеличению температуры охлаждающей жидкости при этих условиях эксплуатации двигателя достигается уменьшение расхода топлива. Регулирование этого термостата производится блоком управления двигателем в зависимости от поля характеристик.
Это поле характеристик определяется следующими факторами:
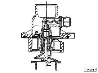
Конструкция программируемого термостата
Программируемый термостат является встроенным, то есть он образует с крышкой единый узел.
Принципиальное механическое устройство программируемого термостата соответствует обычному термостату. Однако дополнительно в расширительный элемент (восковой элемент) встроен нагревательный элемент.

Программируемый термостат в разрезе |
|
Крышка программируемого термостата выполнена из литого алюминия. В крышку термостата встроен также электрический разъем для нагревательного элемента, встроенного в расширительный элемент программируемого термостата.

Программируемый термостат с электрическим разъемом для нагревательного элемента |
|
Принцип работы программируемого термостата
Поле характеристик термостата определяется таким образом, чтобы без вмешательства встроенного подогрева он открывался при температуре охлаждающей жидкости в термостате 103oC (на входе двигателя). Вследствие нагрева охлаждающей жидкости в двигателе на его выходе (место установки датчика температуры охлаждающей жидкости для DME и индикатора на комбинации приборов) в этой рабочей точке измеряется ок. 110 o C. Это и есть рабочая температура двигателя, при которой программируемый термостат начинает открываться без управляющего воздействия.
В случае управляющего воздействия ЭБУ системы DME подает питание (12В) на встроенный в термостат нагревательный элемент. Благодаря подогреву расширительного элемента термостат открывается при более низких температурах охлаждающей жидкости, чем это было бы в случае без дополнительного подогрева, (диапазон регулирования термостатом: прим. 80oC - 103oC).

1 |
Диапазон открытия термостата |
2 |
Температура охлаждающей жидкости |
3 |
Активизация нагревательного элемента напряжением 12 В |
4 |
Активизация нагревательного элемента напряжением 0 В |
Если температура охлаждающей жидкости на выходе двигателя превышает 113oC, то, независимо от прочих параметров, DME включает подогрев программируемого термостата.
Диагностика
Соединения и функционирование программируемого термостата контролируются диагностикой ЭБУ системы DME. Появившиеся неисправности заносятся в ЗУ неисправностей ЭБУ системы DME.
Индикатор температуры охлаждающей жидкости
Шкала индикатора охлаждающей жидкости в комбинации приборов была изменена в соответствии с более высоким уровнем температуры двигателя с программируемым термостатом.
Стрелка индикатора температуры охлаждающей жидкости в комбинации приборов находится при температуре охлаждающей жидкости от
75oC до 113o C
в среднем положении.