Funktionsbeskrivningen innehåller följande kapitel:
INLEDNING
Motormodellserien M62 ersätter M60-motorn. M62-motorn är en vidareutveckling av den 1992 introducerade BMW V-8-cylinder motormodellserien. Den monteras fr o m 1/96 stegvis i intervaller i modellserierna E31, E38 och E39.
I allt väsentligt baseras den nya M62 motorn på M60-motorn:
M62-motorn erbjuds i två slagvolym-varianter. Härvid rör det sig om en 3,5l och en 4,4l variant.
Den kommer att användas i följande bilmodellserier:
Bilmodellserie / motor |
M62B35 |
M62B44 |
|---|---|---|
E31 |
- |
840i |
E38 |
735i |
740i |
E39 |
535i |
540i |

Motor M62 |
|
De viktigaste målen i vidareutvecklingen var att uppfylla nya, lagföreskrifter samt förbättra komforten och kvaliteten.
Därvid har tonvikten lagts på följande:
Dessa mål har huvudsakligen uppnåtts genom en öknig av slagvolymen, ändringar på vevmekanismen, ändringar på kamaxeldrivningen, vidareutveckling av diverse motorkomponenter samt genom den nya digitala motorelektroniken DME M5.2.
Vid tillverkningen av vevhusen använder man av tillverkningstekniska skäl (tillverkningskapacitet hos vevhusens tillverkare) två olika aluminiumlegeringar.
Vevhusen i motorer för länder med kritisk bränslekvalitet (hög svavelhalt i bränslet) tillverkas av Alusil (såsom M73). Det rör sig härvid om motorer för
Vevhusen i dessa motorer är, som hos M73 motorn, tillverkade av en aluminiumlegering (Alusil) i kokillgjutgods. Cylinderglidytorna har inget ytskikt. Ytkvaliteten uppnår man under tillverkningsprocessen genom en etsningsmetod.
Vevhusen i M62-motorer för övriga länder tillverkas med den från M60-motorn kända aluminiumlegeringen (AlSi9Cu3). Cylinderglidytorna i dessa vevhus har ett nickel-dispersionsskikt (Nikasil)
Yttre skiljetecken för de båda vevhusvarianterna (aluminiumlegeringarna) är artikelnumret. Båda materialvarianterna av vevhus har även motsvarande olika ytskikt i kolvarna (se under kapitlet Kolvar)
Oberoende av de olika tillverkningsmetoderna är vevhusens konstruktiva uppbyggnad identisk.
Liksom i M52 och M73 använder man nu även i M62 en kolvkylning med hjälp av hakmunstycken. Dessa hakmunstycken är direkt inskruvade i lagerbocken. Med hjälp av hakmunstyckena träffar oljestrålen kolvtoppen under hela kolvens väg utan avbrott.
Montering och demontering av hakmunstycken sker på annat sätt än det man känner till från M52 / M73. Beakta därför reparationshandledningen!

M62 Motorblock med kolvar |
|
Vevaxeln är ny för båda slagvolymvarianterna, på grund av den ökade slagvolymen. Den är, som i M60, lagrad 5-gånger. Slagtapparna är förskjutna 90 o . Sex motvikter ser till att motorn går vibrationsfritt.
För båda slagvolymsvarianterna av M62 är vevaxeln smidd av stål. En central urborrning tjänar som viktsreducering.
Motsvarande vevhusens båda olika aluminiumlegeringar (beroende av landsvarianterna) har respektive tillhörande kolvar olika ytskikt. Kolvarna för de av Alusil tillverkade vevhusen har järnskikt. Kolvarnas reservdelsnummer är olika.
Måste man vid en reparationn byta kolvar, så måste man speciellt hos fordon från utlandet se till, att man monterar kolvar och kolvringar som motsvarar vevhusets reservdelsnummmer.
Oberoende av kolvarnas ytskikt är deras konstruktiva uppbyggnad identisk. (lådkolv).
Kolvarna är konstruerade för drift med bränslet ROZ 95. Kompressionsförhållandet är för båda slagvolymsvarianterna 10,0 : 1.
Vevstakarna är lika som i M60-motorn.
För första gången har i M60, och nu även i M62, vevstakar av hårdmetall monterats. Förutom lägre vikt (massa i rörelse) har dessa vevstakar en hög hållfasthet över motorns hela driftkapacitet.
Vid tillverkningen av de smidda hårdmetallsvevstakarna separerar man vevstaken och vevstakslocket till vevstakens storända genom brytning. Därigenom borfaller vid monteringen den traditionella centreringen med hjälp av passbussningar. Man centrerar via brottstrukturen och vevstaksskruvarnas styrning. En tarering (färgpunkter eller siffror för viktklassificering) behövs inte tack vare den höga tillverkningsprecisionen hos sintersmideprocessen.
I M62-motorn använder man nya expanderskruvar för att skruva ihop vevstakens storända på vevaxeln.
I kombination med automatväxellåda är svänghjulet tillverkat i ett stycke och gjort av stål. I bilar med manuell växellåda använder man ett hydrauliskt dämpat tvåmassesvänghjul (ZMS).
Hos båda varianterna sitter inkrementkuggningen för vevaxelgivaren, liksom i M73-motorn, på svänghjulet. Den induktiva impulsgivaren är monterad i växellåds-/kopplingskåpan. Inkrementhjulets monteringsställe på svänghjulet möjliggör nu att DME-styrdonet kan identifiera tändningsbortfall.

Svänghjul med inkrementkuggning |
|
I motorerna hittills var inkrementhjulet dämpat via ett vulkaniserat gummielement monterat på rotationssvängningsdämparen. Därmed skulle en identifiering av motorns varvtalsojämnheter inte ha varit möjligt.
På svänghjulet är inkrementhjulet stelt kopplat till vevaxeln, utan dämpningselement.
Därigenom överförs varvtalsojämnheter i motorn, förorsakade exempelvis av tändningsbortfall, odämpade till inkrementhjulet. Med den induktiva impulsgivaren kan man nu, förutom motorvarvtalet och referensmarkeringen, även identifiera tändningsbortfall, som uppkommer på grund av störningar i tänd- resp insprutningsanläggningen. Denna identifiering av tändningsbortfall är ett krav i OBD II (US).
En detaljerad beskrivning av tändningsbortfalls-identifieringens funktionssätt följer i avsnittet DME.
Oljetråget är, liksom i E38 M60, tillverkat i två delar. Överdelen är tillverkad av pressgjutet aluminium. Oljetrågets underdel är tillverkad i dubbelplåt.
Oljefyllmängderna är identiska med M60-motorns.
Oljefyllmängderna för båda slagvolymsvarianterna av M62-motorn är:
Differense mellan 'MIN' och 'MAX' på oljemätstickan är 1,5 l.
Oljepumphuset och oljepumplocket i M62 är av pressgjutet aluminium (M60 magnesium). Oljepumpens uppbyggnad och drivning är identiska med M60-motorns.
I M62 har man, liksom i E38 M60 och i M73-motorn, monterat en termisk oljenivåsensor.
Denna oljenivåsensor ger en pulsbreddsmodulerad signal till Check-Control-modulen (E31: CCM; E38/E39: LCM).
Signalens pulskvot är ett mått för oljenivån i motorn. När ett i CCM-/ LCM-styrdonet lagrat tröskelvärde underskrids, får föraren Check-Control-meddelandet, att han skall kontrollera motorns oljenivå.
En teknisk beskrivning finns i övningshandboken Instrumentkombinations-Elektronik IKE / I-buss-kombination E38.
Oljefiltret är likadant som i M62. Filterhuset däremot är fastsatt i karosseriet.
Vevhuset luftas, som i M60, via ett tryckreglerat system. Vevhusventilationen motsvarar det från M60-motorn kända systemet.
Blow-By-gaserna, som uppstår när motorn är i gång, samlas i vevhuset.
Suganläggningen är kopplad till vevhuset via en i suganläggningens gavellock integrerad tryckregleringsventil. Genom det därigenom uppkomna undertrycket sugs Blow-By-gaserna i vevhuset ut via en cyklonrenare.
På cyklonrenarens svala väggar kondenseras de i Blow-By-gaserna befintliga oljeångorna och återförs via en returledning tillbaka till oljesumpen. De återstående, gasformiga beståndsdelarna tillförs i gasspjällsstutsen via ett fördelarrör i blandningskammarens suganläggning.

Tryckregleringsventil på suganläggningen |
|
4-ventils-cylinderhuvudena till M62 motsvarar till sin konstruktion huvudsakligen de i M60-motorn, även om de inte är exakt likadana. För att skilja dem åt till det yttre, är texten M60 resp M62, samt tillhörande slagvolymsvariant, (exempelvis B35) ingjutna.

M62 topplock |
|
Topplockspackning
Topplockspackningen är asbestfri. I motsats till topplockspackning i M60, täcker den inte längre kedjehuslockets område. I detta område finns nu en ny gummiformtätning (se under Kedjehuslock). Därför har man placerat topplockspackningens märkning (3,5l / 4;4l) baktill.
Ventilkåpa
Ventilkåpan är tillverkad av magnesium.
Man skall undvika skador på ytan till magnesium-ventilkåpan, då ytskador medför risk för korrosion.
Varje topplock har tilldelats två ovanliggande kamaxlar. De är, liksom kamaxlarna i M60, tillverkade i ett stycke som hårdskalsgjutning.
Kamaxelns fixeringsstället har i vinkelställningen anpassats till M60-kamaxeljiggen. Därmed kan man även använda M60-kamaxeljiggen för inställningen av M62-kamaxlar.

Topplock med kamaxlar och oljeledningar |
|
Kamaxelmärkning
Märkningen av kamaxlarna sker, liksom hos M60, med hjälp av inpräglade siffer/bokstavskombinationer (E1-4, A1-4, E5-8, A5-5).
Vid konstruktionen av ventilmekanismen har reduceringen av massan i rörelse ställts i förgrunden. Massan av den hydrauliska ventillyftaren, ventilfjädrarna och den övre fjäderbrickan har märkbart reducerats. Därigenom uppnår man ett lägre friktionsmoment och en reducering av ljudet.
Ventiler
Ventilerna är när det gäller mått och vikt identiska med dem i M60 (samma del som i M60).
HVA-ventiltryckare
HVA-ventiltryckarna har minskats till diametern (M60: (35mm / M62: (33mm). Därmed har en viktreducering med 32g till 48g (M60: 80g) skett (samma del som i M52). Det rör sig här om INA-ventiltryckare, självventilerande med karbonnitrierad kamglidyta.
Ventilfjädrar
En ytterligare minskning av massan i rörelse uppnås genom användningen av koniska enkelventilfjädrar.
Fjädertallrikar
Fjäderbrickan upptill har också viktoptimerats (samma del för M44 och M52). Fjäderbrickan nedtill är samma del som för M52.
Sammanlagt åstadkommer dessa åtgärder en tydlig viktreducering av ventilen, vilket tydligt framgår av nedanstående tabell.
|
M60B40 |
M62B44 |
|---|---|---|
Insugningsventil (g) |
49 |
49 |
Avgasventil (g) |
48 |
48 |
HVA-ventiltryckare (g) |
80 |
48 |
Ventilfjäder(rar) (g) |
36 |
12 |
Fjäderbricka, upptill (g) |
15 |
8 |
Ventilkonstycken (g) |
1 |
1 |
Insug per ventil (g) |
181 |
118 |
Avgas per ventil (g) |
180 |
117 |
Primärdrivning
För finoptimering med avseende på ljud, vikt och friktion sker primärdrivningen med hjälp av en enkeldrivkedja (M60: Duddeldrivkedja) från vevaxeln till insugningskamaxeln. Primärkedjehjulen är gummibelagda, för att göra kedjeingreppet tystgående.
Kamaxelgivarhjul
På insugningskamaxelns kedjehjul för cylinder 1-4 finns ett givarhjul med 4 givarmarkeringar för identifiering av 1:a cylindern (DME). Som kamaxelgivare används, i motsats till M60 (induktivgivare), i M62-motorn en ljudgivare.
På grund av kamaxelgivarhjulets nya konstruktion har även givarhjulets positionering vid monteringen av kamaxeldrivningen fastlagts på nytt. Kamaxelgivarhjulet får en markering (skåra). Vid monteringen skall man se till att denna markering pekar uppåt i cylindrarnas axelriktning. Beakta även härvid reparationshandledningen.

M62 Kamaxelgivarhjul |
|
Vändskena för primärkedja
Brythjulet i V-rummet har i M62 ersatts av en vändskena av aluminium med påhakad plastglidbana. Kedjespänningen sker över een hydraulisk kedjespännare med tryckbegränsning.

Motor M62 med vändskena för primärdrivning |
|
Beroende på användningen av en vändskena (istället för brythjul), måste man vid monteringen av primärdrivningen beakta de ändrade vridmomentvärdena vid förspänningen av spännskenan. (se Reparationshandledningen)
Sekundärdrivning
Sekundärdrivningen sker också via en enkeldrivkedja. Den går från insugningskamaxeln till avgaskamaxeln.
På varje topplock finns en hydraulisk kedjespännare integrerad

M62 Topplock med enkeldrivkedja |
|
Kedjehuslocken är, liksom i M60, fastskruvade på cylinderhuvudena och på det centrala vevhuset.
Tätningen är ny:
Tätningen av de båda övre kedjehuslocken mot topplocket och mot det nedre kedjehuslocket består av en gummiformtätning. Genom gummiformtätningen får man en bättre toleransutjämning och en akustisk frånkoppling mellan det nedre och övre kedjehuslocket.
Med hänsyn till den ändrade tätningen skall man även beakta ett nytt tillvägagångssätt vid monteringen av det övre kedjehuslocket, för att uppnå en optimal tätningseffekt. Se under Monteringsanvisning i Reparationshandledningen!
Tätningen av det nedre kedjehuslocket till vevhuset sker genom en packning.
Gasspjällstutsen till M62 har omformats. I mynningens område till tomgångs-luftregleringen (ZWD 2) har man åstadkommit en blandningskammare.
Denna blandningskammare bildas genom en mellan suganläggningen och gasspjället monterad plåt med exakt avstämda genomgångsöppningar.
In i denna blandningskammare strömmar tomgångsställarluften, aktivt-kolfiltrets sköljluft och via jämnfördelarröret Blow-By-gaserna, vilka leds från tryckregleringsventilen för vevhusventilationen till gasspjällstutsen. Här blandas Blow-By-gaser och aktivt-kolfilterns sköljluft med den insugna friskluften. Därmed säkerställs en jämn fyllning av alla cylindrar med Blow-by-gaser, och därmed en jämnare tomgångskvalitet.
Suganläggningen till M62 är i ett stycke och tillverkad i plast. Den motsvarar den av M60B40.
Tryckregleringsventilen för vevhusventilationen är direkt monterad på suganläggningen. Från tryckregleringsventilen leder ett fördelarrör genom suganläggningen till blandningskammaren i gasspjället, för att därigenom jämnt fördela de uppkommna Blow-By-gaserna till alla cylindrar.
En anslutning för Master-Vac till bromsservon befinner sig i suganläggningens lock.
Som i de flesta BMW-motorer har även M62 en vilande tändfördelning.
Tändspolar
För M62-motorn används nya tändspolar. Tändspolarna är likadana som de i M52-motorn. Dessa har genom den ändrade mekaniska konstruktionen blivit mindre och lättare, i jämförelse med tändspolarna hittills.

Jämförelse tändspolar M60 - M62 |
|
För alla fordon med M62-motor använder man en kompaktgenerator (140A) med friskluftsinsug.
I E31-bilar (två batterier i bagageutrymmet!) med ökat energibehov och därmed ökad viloström (på grund av specialutrustningar som telefon eller parkeringsvärme) används fortsättningsvis en vattenkyld 220A-generator.
I kombination med specialutrustningen Klimatanläggning använder man i E39 en 3-stegs elektrisk extrafläkt.
I modellerna E31 och E38 är denna extrafläkt standard, eftersom klimatanläggningen i dessa fordon hör till grundutrustningen.
För optimering av ljudet har den hittillsvarande tvåstegskopplingen utökats med ett 3:e steg. De nya stegens inkopplingskriterier har fastlagts på nytt.
Inkopplingskriterier
Tillkoppling |
Steg I |
-Kompressorkopplingen aktiv och yttertemperaturen > 10 o C. -Vattentemperaturen> 91 o C. |
Tillkoppling |
Steg II |
-Mellantrycksbrytare pressostat stängd> 21 bar |
Tillkoppling |
Steg III |
-Vattentemperaturen> 104 o C. (Tillkoppling via dubbel-temperaturkontakt) |
Frånkoppling |
Steg IV |
-Kompressorkopplingen inaktiv - yttertemperaturen < 8 o C. -Vattentemperaturen < 91 o C |
Som startmotor använder man, liksom i M60, för alla varianter en 12 V nedväxlad startmotor av Bosch med 1,7 kW effekt.
I modellserierna E38 och E39 är ledningarna och ledningsdragningarna till batteriladdarens anslutningspunkt. B+ -ledningen går under motorn till generatorn och till batteriladdarens anslutningspunkt.
Batteriladdarens anslutningspunkt befinner sig på kedjehuslocket till cylinderraden 5 - 8.
I E31 sitter batteriladdarens anslutningspunkt fortfarande på fjäderbenets valv till höger.
Avgassystemet är, från avgasgrenröret till slutröret, helt och hållet tillverkat av rostfritt stål och från grenrörsflänsen bakåt i ett stycke.
Avgasgrenrör
Liksom hittills i M60 användes även i M62 luftspaltisolerade plåtavgasgrenrör.
Katalysator
Även framrören är luftspaltisolerade dubbelrör.
Katalysatorn är av ett dubbelflödigt utförande med vardera 2 trimetallbelagda (platina, palladium, rodium) keramik-monoliter per avgassträng. För att få ett så lågt avgasmottryck som möjligt, har monoliterna samma diameter som de i M73.
Vattencirkulationens prinzipiella konstruktion motsvarar M60-motorns.
Vattenpump
Vattenpumpens konstruktion är identisk med M60-motorns vattenpump. Huset är av pressgjutet aluminium och påskruvat på kedjehuslocket. I motsats till M60, finns det i vattenpumpshuset en dubbeltemperatursensor monterad för kylvätskan. Denna dubbeltemperatursensor sitter där kylmedlet kommer ut ur motorn.

Detaljbild, vattenpump med dubbeltemperatursensor |
|
Motorkylare
Motorkylaren till M62 är till sin konstruktion identisk med den i M60-motorn.
För landsvarianter är dessutom monteringen av en motoroljekylare planerad.
Termostaten är integrerad i vattenpumpshuset.
I E31 med M62 motorn monteras, liksom i M60, en konventionell termostat med integrerad avluftningsventil. Denna öppnas vid 85 o C.
I modellserierna E38 och E39, med M62-motorn, använder man en ny, programstyrd termostat.
Funktion för en konventionell termostat
Motorkylningens reglering genom en traditionell termostat bestäms enbart av kylmedelstemperaturen. Denna reglering kan man indela i tre driftområden:
Inom detta driftområde (termostatregleringsområde) kan man nu med hjälp av den programstyrda termostaten direkt påverka kylmedelstemperaturen.
Därmed är det nu möjligt att ställa in i motorns dellastområde på en högre kylmedelstemperatur. Med högre arbetstemperaturer i dellastsområdet uppnår man en bättre förbränning, vilket resulterar i en lägre förbrukning samt ett lägre utsläpp av miljöfarliga ämnen.
Vid fullastdrift skulle högre arbetstemperaturer medföra nackdelar (tändvinkelsåtertagning på grund av knackningar). Därför ställer man målmedvetet in låga kylmedelstemperaturer med hjälp av den programstyrda termostaten vid fullastdrift.

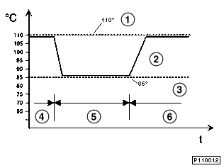
|
Regleringskarakteristik för den programstyrda kylningen |
|---|---|
1 |
Kurva för en 110 o C termostat |
2 |
Kurvan för en programstyrd termostat |
3 |
kurva av en 85 o C -termostat |
4 |
Dellastsområde |
5 |
Fullastområde |
6 |
Dellastsområde |
Därmed är BMW världens första biltillverkare som använder en programstyrd termostat i en storseriemotor för att direkt reglera kylmedelstemperaturen. Med hjälp av denna termostat är en direkt höjning av kylmedelstemperaturen i dellastsområdet möjlig. Genom att höja kylmedelstemperaturen under dessa driftförhållanden uppnår man en reducering av bränsleförbrukningen. Regleringen av denna programstyrda termostat sker genom DME M5.2 beroende av en kurva.
Denna kurva bestäms av följande faktorer:
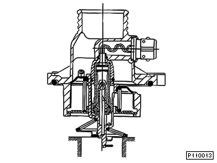
Uppbyggnad av en programstyrd termostat
Den programstyrda termostaten är en integraltermostat, dvs termostaten och termostatlocket bildar en enhet.
Den programstyrda termostatens principiella, mekaniska konstruktion motsvarar konstruktionen för en konventionell termostat. Därutöver finns det också ett värmeelement integrerat i töjningselementet (vaxelement).

Genomskärning av den programstyrda termostaten |
|
Den programstyrda termostatens termostatlock är av pressgjutet aluminium. Integrerat i termostatlocket är även den elektriska anslutningen för värmeelementet, som är kopplat till den programstyrda termostatens töjningselement.

Programstyrd termostat med elanslutning för värmeelement |
|
Den programstyrda termostatens funktion
Den programstyrda termostaten är så avstämd, att det öppnas, utan påverkan från den integrerade värmen, vid en kylmedelstemperatur vid termostaten på 103 o C (motortillopp). Genom uppvärmningen av kylmedlet i motorn uppmäts vid motorutloppet (kylmedeltemperatursensorns monteringsställe för DME och kombiindikeringen) under detta driftskede ca 110 o C. Motorns arbetstemperatur, vid vilken den programstyrda termostaten börjar öppna utan regleringsingrepp.
Vid ett regleringsingrepp genom DME-styrdonet tillförs ström (12V) till det i termostaten integrerade värmeelementet. Genom uppvärmningen av töjningselementet öppnar nu termostatet redan vid lägre kylmedelstemperatur än vad som skulle vara fallet utan den extra uppvärmningen (termostatregleringområde: ca 80 o C - 103 o C).

1 |
Termostatens öppningsväg |
2 |
Kylmedelstemperatur |
3 |
Styrning av värmeelementet med 12 V |
4 |
Styrning av värmeelementet med 0 V |
Överskrider kylmedelstemperaturen 113 o C vid motorutloppet, så aktiveras den programstyrda termostatens uppvärmning utifrån DME, oberoende av övriga parametrar.
Diagnos
Ledningsförbindelsen och den programstyrda termostatens funktion övervakas av Diagnosen i DME-styrdonet. Uppträdande fel lagras i DME-styrdonets felminne.
Kylmedelstemperaturindikering
Kylmedelstemperaturindikeringens indikeringskarakteristik i Kombin anpassades till motorns, genom den programstyrda termostatens villkorade, högre temperaturnivå.
Kylmedelstemperaturindikeringens visare i Kombin befinner sig vid kylmedelstemperaturer på
75 o C - 113 o C
i mittläget.
Den digitala motor-elektroniken DME M5.2 av Bosch, som redan används i M73, kommer nu även att användas i M62-motorn. Den ersätter DMEn M3.3 i M60-motorn
Denna nya DME-version utvecklades, för att uppnå de i början nämnda målen och för att bl a uppfylla de nya amerikanska lagföreskrifter (exempelvis OBD II). Speciellt de kaliforniska normerna ställer mycket höga krav beträffande avgas-emissionsvärden.
Dessa CARB-funktioner (Californian Air Ressource Board) är uppfyllda i DME M5.2.
De för den amerikanska marknaden bestämda bilarna är utrustade med ett, för alla fordonstillverkare standardiserat gränssnitt: On Board Diagnos (OBD). Genom detta gränssnitt kan den statliga trafikövervakningen när som helst läsa av OBD-relevant information från DME-felminnet via Diagnos-ledningen. Åtkomsten till detta begränsade utrymme av felminnesinnehållet frisläpps genom en intern kodning i DME-styrdonet.
De viktigaste kännemärkens för DME M5.2 är:
För att kunna kontrollera, att man håller sig inom avgasgränsvärdena, kräver de kaliforniska föreskrifterna och USAs lagföreskrifter en övervakning av alla avgasrelevanta komponenter under körning. Härtill krävs en effektiv självdiagnos, som bland annat omfattar tändningsbortfalls-identifiering. Uppstår ett avgasrelevant fel, så aktiveras i US-fordon genom DMEn "Check Engine"-lampan i Kombin. Denna informerar föraren om att det föreligger ett fel i motorstyrningen, som påverkar avgasutsläppet och som omedelbart måste åtgärdas av en märkesverstad.
De viktigaste OBDII-diagnosfunktionerna är:
Ytterligare beståndsdelar i OBD II är ett för alla fordonstillverkare standardiserat gränssnitt, via vilket de trafikövervakande USA-myndigheterna har möjlighet att avläsa de i styrdonet lagrade, avgasrelevanta felen med hjälp av ett "Scan-Tool". Åtkomsten till data i felminnet är för dessa myndigheter begränsat till avgasrelevanta fel.
Med undantag för funktionerna
är alla OBD II relevanta övervakningsfunktionerna, även realiserade i de DME 5.2-styrdon, som inte är avsedda för USA-marknaden. Det standardiserade OBD II-gränssnitt, som ger myndigheterna tillgång till felminnet, finns endast monterat i USA-bilar.
Med hjälp av den induktiva impulsgivaren mäts motorns rotationshastighet (varvtal) vid inkrementhjulet. Förutom identifieringen av varvtalet, sker i M62 (i likhet med M73) identifieringen av tändningsbortfall.
För tändningsbortfalls-identifieringen uppdelas nu inkrementhjulet styrdonsintern i enlighet med tändningsavståndet (i 8-cylindermotorn 4 tändförlopp per vevaxelvarv) i fyra segment.
I styrdonet mäts periodtiden (T) för de enskilda inkrementhjulssegmenten. Är förbränningsförloppet i alla cylindrar OK, så är periodlängden för alla inkrementhjulssegment lika lång (T1 = T2 = T3 = T4).
Uppträder nu en störning på en av cylindrarna (tändningsbortfall), så förlängs periodtiden som tilldelats denna cylinder med bråkdelar av millisekunder (se bild: T3> T1, T2, T4). Dessa segmenttider utvärderas statistiskt i styrdonet.

|
Principbeskrivning av tändningsbortfalls-identifiering |
|---|---|
1 |
Motordriften OK |
2 |
Tändningsbortfall i avsnitt T3 |
För varje diagrampunkt är de maximalt tillåtna skakningsvärdena, dvs avvikelserna för periodtiden för ett segment, fastlagda som en funktion av varvtal, belastning och motortemperatur.
När dessa tillåtna värden överskrids, lagras de i felminnet som identifierat fel i cylindern. I USa-fordon aktiveras i detta fall "Check Engine"-lampan.
Som ytterligare åtgärd, för att skydda katalysatorn mot överhettning, kopplas insprutningen till den aktuella cylindern ifrån.
Adaption
Tillverkningsbetingade toleranser när det gäller inkrementhjulet kan leda till felfunktioner i tändningsbortfalls-identifieringen. Av den anledningen utför DME självständigt en adaption.
De tillverkningsbetingade toleranserna för inkrementhjulet adapteras i motorns påskjutningsfaser utan tändning och insprutning, eftersom motorn i dessa faser inte producerar varvtalsojämnheter genom förbränning.
Anvisningar till servicen:
Efter ett svänghjuls-, inkrementgivar- eller DME-strydonsbyte skall man under en efterföljande provkörning se till, att man håller en längre motorpåskjutningsfas (ca 10 sek), för att DME-styrdonet skall kunna adaptera svänghjulet.
Via CAN-buss-förbindelsen pågår den digitala dataöverföringen mellan följande styrdon:
För båda slagvolymsvarianterna används konstrålsventiler (liksom i M60) från Bosch och Lucas.
Liksom i M60, använder man även i M62 en värmefilms-luftmängdsmätare.
Tomgångsregleringen sker i M62-motorn, liksom i M60, via en tvålindnings-vridströmställare (ZWD 5). Den genom ZWD 5 i tomgång insugna luften mynnar ut i gasspjällets blandningskammare.
Före var och en av de båda katalysatorerna finns en Lambda-sond monterad. De för USA-marknaden bestämda M62-modellerna får dessutom, för att uppfylla OBD II-bestämmelserna, en andra Lambda-sond (monitor-sond) efter varje katalysator. Lamda-sonderna är identiska med dem i M73-motorn (Typbeteckning: Bosch LSH 25).
Även M62-motorn har en knackningsreglering. Knackningsregleringen förhindrar knackande motordrift. När knackningsrisk föreligger, ställer den in tändningstidpunkten för den aktuella cylindern tillbaka i riktning sent så långt som möjligt.
De 4 knackningssensorerna är fastsatta på motorblockets vattenmantel, mellan båda cylinderraderna. De är så anordnade, att varje sensor övervakar de båda närmaste cylindrarna. Knackningssensorernas konstruktion och funktion är identiska med dem i M60.
I M62 använder man sig av en dubbeltemperatursensor (som i M52). Denna används för identifiering av kylmedelstemperaturen och för motorstyrningssystemet samt för fjärrtermometern i kombiinstrumentet. Härtill finns i sensorn två galvaniskt, från varandra separerade, NTC-piller med olika motståndskurvor.
Dubbeltemperatursensorn är monterad på motorns framsida i vattenpumphuset.
Funktionen Automatstart förbättrar förarens komfort under starten. För att starta motorn, måste tändningsnyckeln för en kort stund vridas till positionen "Start" (klämma 50). Efter det att signalen till klämma 50 kommit in i DME-styrdonet, aktiveras startmotorn ända tills motorn har startat. Alla E38-bilar med M73-motorn är redan utrustade med denna funktion.
Nu utrustas även alla E38- och E39-bilar med M62-motorn i kombination med specialutrustningen Automatväxellåda med funktionen Automatstart.
Funktion
Med funktionen Automatstart aktiveras startmotorrelät inte längre direkt via klämma 50. Klämma 50 tjänar enbart som ingångssignal till DME 5.2.
När startsignalen (klämma 50) når DME 5.2-styrdonet, och samtidigt identifierar den korrekta växlingskoden, från EWS-styrdonet, aktiverar DME via utgången "Automatstart" startmotor-relät. Förutsättningen härför är, att växelväljarspaken är i position "P" eller "N".
Startmotorn aktiveras via startmotorrelät ända tills det via vevaxelgivaren identifierar läget "Motorn går".
"Motorn går" identifieras, när motorvarvtalet
överskrids kortvarigt under startförloppet.
Med identifieringen av "Motorn går" signalen kopplas startmotorreläet från av DME-styrdonet. Skulle motorstarten misslyckas, så avbryts Automatstarten via en från DME utskickad jordsignal efter 20 sekunder.

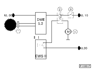
|
Funktionskopplingsschema "Automatstart" |
|---|---|
1 |
Vevaxelgivare |
2 |
Startmotorrelä |
3 |
Kontakt automatisk växellåda (L2) |
Alla fordon med M62-motor utrustas som standard med ASC+T. För att uppfylla ASC-funktionerna, får även M62-motorn ett förgasspjäll (liksom i M60), som vid behov ställs om via en Bowden-vajer genom ADS II-ställmotorn.
ADS II-ställmotorns styrning sker via ABS/ASC-styrdonet. Ytterligare ASC-ingrepp, liksom tändvinkelomställningen, samt tänd- och insprutningsbortkopplingen, utförs av DME-styrdonet.
För att genomföra motorns släpmomentreglering (MSR), används i M62-motorn även tomgångsregleringen (ZWD 5). Tomgångsregleringen öppnas direkt, när motorns släpmomentreglering (MSR) aktiveras. Härtill erhåller den en pulsbreddsmodulerad signal från DME.
Överföringen av de för aktiveringen av ASC-funktionerna i DME-styrdonet nödvändiga informationerna sker via CAN-bussen.