Fonksiyon tarifi aşağıdaki Maddeleri içerir:
GİRİŞ
Motor imalat serisi M62, M60'ların yerine geçmiştir. M62-Motor 1992 de çıkan BMW V-8-Silindir serisi motorların geliştirilmişidir. 1/96 dan itibaren zamanla kademeli olarak E31, E38 ve E39 serilerine takılmıştır.
M60 nin birçok özelliği M62 de kullanılmıştır.
M62 Motor iki silindir hacminde sunulmuştur. 3,5 litre ve 4,4 litre seçenekleri vardır.
Aşağıdaki Araç imalat serileri mevcuttur:
Araç serisi / Motor |
M62B35 |
M62B44 |
|---|---|---|
E31 |
- |
840i |
E38 |
735i |
740i |
E39 |
535i |
540i |

Motor M62 |
|
Geliştirmenin en önemli hedefleri, yeni yasal koşullara uymak ve konfor ve kalitenin iyileştirilmesi idi.
Bunun için ön planda:
Bu hedeflere, silindir hacminin büyümesiyle, krank düzeninde değişikliklez eksantrik mili düzeninde değişiklikle, muhtelif motor parçalarının geliştirilmesiyle, aynı zamanda Dijital Motor Elektronik DME M5.2 ile büyük ölçüde ulaşıldı.
Motor bloğu üretiminde, üretim teknikleri sebebiyle iki farklı aluminyum-alaşımı gündeme gelir (imalatçının motor bloğu işleme kapasitesi)
Yakıt kalitesi kritik olan piyasalar için (yakıtta yüksek kükürt oranı) motorların motor blokları (M73 gibi) Alusil'den üretilir. Burada söz konusu olan motorlar
Bu motorların motor bloğu, M73 Motorda alüminyum-alaşımından (Alusil) kokil dökümle yapılmıştır. Silindir hareket satıhları kaplanmamıştır. Silindir hareket satıhlarının yüzey kalitesine, imalat sürecinde bir tür asitleme metodu ile ulaşılmıştır.
M62-Motorlarının motor bloğu, diğer tüm piyasalar için M60 motorundan bilinen aluminyum-alaşımı (AlSi9Cu3)'dan üretilir. Bu motor bloğunun silindir haraket yolu, nikel dispersiyon yöntemiyle kaplanmıştır (Nikasil)
-Aluminyum-alaşımlı motor bloklarını, parça numaraları ile bir diğerinden ayırdedebiliriz. Her iki malzeme versiyonuna uygun piston yüzey kaplaması yapılmıştır (bakınız Madde: Piston)
Farklı işleme metodlarından bağımsız olarak, motor bloğunun konstruktif yapısı aynıdır.
M52 ve M73 de olduğu gibi şimdi de M62 de çengelli meme ile piston soğutması gündemdedir. Bu çengelli memeler doğrudan olarak yatak ayağına vidalanmıştır. Çengelli memelerin yardımı ile piston çalışma esnasında kesintisiz olarak pistonun tüm çevresine bol yağ püskürtülür.
Çengelli memelerin sökülüp takılması, M52/M73'de bilinenden farklı şekilde yapılır. Lütfen onarım kılavuzuna dikkat edin!

M62 pistonlu Motor bloğu |
|
Eksantrik mili, büyütülen sıkıştırma hacmi dolayısıyla her iki model de için yenidir. M60 lara göre 5-misli artmıştır. Piston muyluları 90 o getirilmiştir. 6 balans ağırlığı yardımı ile rahat çalışma sağlanmıştır.
M62 nin her iki sıkıştırma versiyonunda krank mili dövme çeliktir. Ortadan delinen bir delik kranka hafiflik sağlar.
Her iki farklı gövde alaşımına uygun, ilgili piston ve segman yüzeylerinde ülke versiyonlarına bağlı olarak farklı kaplamalar görülür. Alusil döküm gövdeler için yapılmış pistonlar çelik kaplanmıştır. Pistonlar, parça numaralarından ayırdedilirler.
Tamirde piston değiştirmek gerekirse, bilhassa yurtdışından gelen pistonlarda doğru gövdeye uygun parça numaralı piston ve segman takılmasına dikkat edilmelidir.
Pistonların, yüzey kaplamasından bağımsız olarak konstrüktif yapıları aynıdır (tam döküm piston).
Pistonlar, çalışma için ROZ 95 yakıtına uygun üretilmiştir. Her iki silindir hacmi için sıkıştırma oranı 10,0:1.
Kranklar M60 Motor krankları ile aynıdır.
Kranklar ilk kez M60 da ve şimdi de M62 motorlarda sinter metalden üretilmiştir. Hareketli parçaların hafifliği yanısıra bu kranklar motorun toplam verimini de arttırırlar.
Sinter krankların yapımında krank çubuğu ve büyük motor bloğunun kapağı kırılarak birbirinden ayrılmıştır. Böylece Montaj esnasında bilinen merkezleme işlemi geçme burçları üzerinde yapılır. Merkezleme Krank cıvatalarının merkezlemesi ve Kırmalı Yapı Üzerinden yapılır. Taramalama (renklendirmek veya ağırlık sınıfı için numara), sinter döküm prosesinin yüksek işleme hassasiyeti nedeniyle gerekmez.
M62-motorlarda krank çubuklarının krank miline bağlanmasında uzamalı cıvatalar kullanılır.
Otomatik şanzımanla bağlantılı olan volan tek parçadır ve çelikten yapılmıştır. Otomatik olmayan şanzımanlı araçlarda hidrolik bastırılmış çift kütle volanı (ZMS) kullanılır.
Her iki modelde de krank mili sezicisi için, M73-motorlarda olduğu gibi volanda artma dişleri açılmıştır. Endüktif empülsiyon sezici şanzıman-/kavrama kutusu içine takılmıştır. Volanın artma çarkının yeni takılış yeri, DME-kumandasına çevrilmenin tanımlanmasına imkan sağlar.

Artma dişli volan |
|
Şimdiye kadarki motorlarda volan dişlisi Dönme titreşimi gidericisi de vulkanize kauçuk bir parça üzerine radyal olarak sıkıştırılmasıya takılıyordu. Bu durumda motorun dönme stabilitesi anlaşılamıyordu.
Volanda İnkremeçli çark, sıkıştırma elemanı olmaksızın krank mili ile kuvvetli bir şekilde bağlantılıdır.
Böylece motorun dönme stabilitesi, örneğin ateşlemeden gelen sebep ile, yer tutmadan volan çarkına aktarılır. Endüktif empülsiyon sezici ile motor devir sayısı yanında, ateşlemede veya püskürtmede arıza nedeniyle oluşan ateşleme kesici ve referans noktası tanınabilir. Bu kesicinin algılanabilmesi Amerikan OBD II talebidir.
Kesici tanımı fonksiyonlarının şekli DME Bölümünde detaylı olarak anlatılmıştır.
Yağ karteri E38 M60 de olduğu gibi iki parçalıdır. Üst parça aluminyum dökümdür. Yağ karteri alt parçası iki parçalı saçtan yapılmıştır.
Yağ doldurma seviyesi M60 -motorlarla aynıdır.
Yağ doldurma miktarları M62-motorların herbiri için aşağıdaki kadardır:
Yağ çubuğunda `MIN' ve `MAX' arasındaki fark 1,5 litredir.
M62 nin yağ pompa gövdesi ve kapağı dökme alüminyumdur (M60 da Mağnezyumdur). Pompanın yapısı ve çalışması M60 ile aynıdır.
M62 de, E38 M60 ve M73-motorda olduğu gibi termik Yağ seviye sezicisi takılmıştır.
Bu yağ seviye sezicisi, empülsiyon genişliği modülasyonlu bir sinyali check-control modülüne iletir (E31: CCM; E38/E39: LCM).
Bu sinyalin temas oranı, motordaki yağ doldurma seviyesi yükseklik ölçüsüdür. CCM-/ LCM kumandasındaki kayıtlı değerlerin azalması, sürücüye "yağ seviyesini kontrol edin" mesajını verir.
Teknik tarifi IKE / I-Bus-Bağlantılı E38 de bulabilirsiniz.
-Yağ filtresi M62 ile aynı parçadır, filtre gövdesi gövdeye bağlanmıştır.
M60'larda Motor bloğu, basınç ayarlama sistemi ile havalandırılır. Motor bloğu havalandırmasının yapısı, motor çalışırken uygulanan Blow-By-Gase (gazla üfleme) sistemi, gazı motor bloğu içinde toplar. Bu, M60'larda bilinen bir sistemdir.
Motor çalışırken, Blow-By-Gase sistemi gazı motor bloğu içinde toplar.
Emiş sistemi, entegreli basınç ayar vanasının üst kapağı içinde ve motor bloğu ile bağlantılıdır. Burada gerekli vakum Blow-By-Gase tarafından siklon ayırıcı üzerinden emilerek elde edilir.
Siklon ayırıcı'nın soğuk çeperlerinde Blow-By-Gazlarından elde edilen ve yoğunlaşan yağ, bir dönüş borusu ile kartere geri gönderilir. Gaz içindeki parçacıkları emicinin borusu ile boğaz kelebeği koruyucusunda karışım odasına iletilir.

Emiş sistemi basınç ayar vanası |
|
M62 nin 4-valfli silindir kafası yapısal olarak M60'ınki ile çok benzerdir, fakat aynı parça değildir. Dışardan görünen farkı, boru kısmında M60 veya M62 yazılarıdır, aynı şekilde silindir hacmi versiyonları (örneğin B35).(Bu yazılar parça dökülürken kalıptan çıkar).

M62 Silindir kafası |
|
Silindir kafası contası
Silindir kafası contası asbest içermez. M60 ın tersine Silindir kafası contası artık zincir kutusu kapağı bölgesinde değildir. Bu bölgede yeni bir lastik conta vardır (bkz. zincir kutusu kapağı). Bu sebepten Silindir kafası contasının yazısı da (3,5 litre/ 4;4 litre) arka tarafa yazılmıştır.
Silindir kafası kapağı
Silindir kafası kapağı Mağnezyumdan yapılmıştır.
Mağnezyum Silindir kafası kapak yüzeyinin zarar görmesi engellenmelidir.Çünkü yüzeydeki bu hasar pas tehlikesini de beraberinde getirir.
Herbir Silindir kafasına üstte duran iki eksantrik mili takılıdır. Bunlar, M60 eksantrik millerinde olduğu gibi dolu mil olarak çelik dökümden imal edilmiştir.
Eksantrik millerinin işaret düzlüğü, açılı pozisyonda ilgili M60-işaretleme takımına uydurulur. Böylece, M60-işaretleme takımı M62 eksantrik milleri için de kullanılabilir.

Eksantrik milli ve yağ borulu Silindir kafası |
|
Eksantrik mili tanıma işaretleri
Eksantrik milli tanıma işaretleri M60 lardaki gibi kazılmış sayı/harf kombinasyonlarıdır.(E1-4, A1-4, E5-8, A5-5).
Valf mekanizması konstrüksiyonunda hareketli parçaların ağırlığının düşürülmesi ön plandadır. Hidrolik iticiler, sibop yayları ve üst yay çanaklarının ağırlığı büyük ölçüde azaltılmıştır. Böylece daha az sürtünme momenti ve gürültü elde edilir.
Valfler
Valfler, kütle ve ağırlık olarak M60 ınki ile eşittir.(M60 ile aynı parça).
HVA-İtici fincanı
HVA-itici fincanın çapı daraltılmıştır.(M60: (35mm / M62: (33mm). Bu sayede ağırlık 48 gr dan 32gr a düşürüldü (M60: 80g) a ulaşıldı (aynı parça M52). Burada INA-itici fincanları kullanılır, eksantrik kayma yüzeylerinde karbon nitrit kaplıdır ve kendinden havalandırmalıdır.
Valf yayları
Hareketli parçaların azaltılması amacıyla özel konik valf yayı kullanılmıştır.
Yay çanakları
Aynı şekilde üst yay çanakları ağırlık bakımından en uygun değere getirilmiştir.(M44 ve M52 için aynı parça). Alt yay çanakları M52 ile aynı parçalardır.
Toplam olarak valf sisteminde önemli ağırlık azalması sağlanmıştır. Bununla ilgili tablo aşağıdadır.
|
M60B40 |
M62B44 |
|---|---|---|
Emme valfi (g) |
49 |
49 |
Egzoz valfi (g) |
48 |
48 |
HVA-İtici fincanı (g) |
80 |
48 |
Valf yayı (g) |
36 |
12 |
Yay çanağı, üst (g) |
15 |
8 |
Valf konik parçası (g) |
1 |
1 |
Valf başına emiş (g) |
181 |
118 |
Valf başına egzoz (g) |
180 |
117 |
İlk hareket sistemi
Hassas ayarda ses, ağırlık ve sürtünme bakımından ilk-hareket sistemi tek sıralı zincir üzerinden sağlanır (M60: Çift sıra zincir) kranktan emiş-eksantrik miline. İlk hareket zincir çarkı, sessiz çalışma sağlanmak üzere lastik kaplanmıştır.
Eksantrik mili sezici çarkı
Emiş eksantrik zincir çarkında, 1-4 Silindir için sezici dişli, 1. silindirin (DME) tanınması için 4 sezici işaretlidir. M62-motorlarda eksantrik mili sezicisi olarak M60 ın tersine (induktif sezici) bir hall sezici vardır.
Eksantrik mili sezici çarkının yeni yapısı sebebiyle sezici dişlinin pozisyonlaması, eksantrik mili sistemi takılırken yeniden belirlenmiştir. Eksantrik mili sezici çarkı üzerinde marka olarak bir kertik işareti vardır. Montajda, bu işaretin silindirin eksen yönünde üst tarafı göstermesine dikkat edilmelidir. Buna onarım kılavuzunda da dikkat edilmelidir.

M62 Eksantrik mili sezici çarkı |
|
İlk zincirin yön değiştirme parçası
M62 lerde V-odasında çevirme diski, alüminyumdan üzerine plastik kanal bağlanmış yön değiştirme parçalıdır. Zincir gergisi, basıncı sınırlandırılmış hidrolik zincir gerici ile yapılır.

İlk-hareket sistemi yönlendirme parçalı M62-motoru. |
|
Çevirme diski yerine çevirme parçası kullanırken montajda; ilk-hareket sisteminin değişmiş döndürme momenti değerlerine, gergi parçasının ilk gergisi yapılırken dikkat edilmelidir.(bkz. Onarım kılavuzu).
İkinci-hareket sistemi
İkinci-hareket sistemi de aynı şekilde tek sıra zincir üzerinden çalışır. Aynı şekilde emiş eksantrik milinden egzoz eksantrik miline.
Silindir kafasının her birinde hidrolik zincir gergisi takılıdır.

Tek sıra zincir dişlili M62 Silindir kafası |
|
M60'larda Zincir kutusu kapakları, silindir kafalarına ve merkezi eksantrik kutusuna cıvatalanmıştır.
Conta yenidir:
Üstteki iki zincir kutusu kapağı ile silindir kafası arasında ve alt zincir kutusu kapağı arasındaki sızdırmazlık, bir lastik conta ile sağlanır. Lastik conta ile alt ve üst zincir kutu kapaklarının birbirlerine daha uygun toleranslarla ve ses yapmadan bağlanması sağlanır.
Montajda contanın yenisini takmak iyi bir sızdırmazlık için gereklidir. Bakınız onarım talimatı montaj uyarısı!
Alt zincir kutu kapaklarının eksantrik gövdesi ile olan sızdırmazlığı, düz bir conta ile sağlanır.
M62 nin boğaz kelebeği desteği yeni bir gelişmedir. (ZWD 2) rölanti ayarı ağız bölgesinde bir karışım odası yapılmıştır.
Bu karışım odası, emiş sistemi ile boğaz kelebeği arasındaki saç ile en uygun kesit aralığı sağlanarak oluşturulur.
Bu şekildeki bir karışım odasında rölanti ayarlama havası dolar, ayrıca aktif kömür filtresinin havası ve boğaz kelebeği desteği sağlayan dengeleme parçaları borusu ve eksantrik gövdesi havalandırması için, basınç ayar vanasından gelen blow gazı da dolar. Burada Blow-By-Gase ile aktif kömür filtresinin durulama havası, emilen taze hava ile karışır. Böylece tüm silindirlerin eşit miktarda Blow-By-gaz alışı ile, düzgün bir rölanti kalitesi elde edilir.
M62 nin emiş sistemi, tek parçalı ve plastik malzemeden imal edilmiştir. Bu M60 B40 a uygundur.
Eksantrik kapağı havalandırmasının basınç ayar valfi, doğrudan emiş sistemine takılmıştır. Basınç ayar valfinden emiş sistemi vasıtasıyle, karışım odasına bir atık madde borusu gider, böylece istenilen Blow-By-Gazları tüm silindirlere eşit olarak dağıtılır.
Fren kuvveti yükselticisinin Master-Vac bağlantısı, emiş sisteminin kapağında bulunur.
Birçok BMW motorunda olduğu gibi M62 lerde de sakin çalışan bir ateşleme bölmesi vardır.
Ateşleme bobinleri
M62 Motorları için yeni Ateşleme bobinleri kullanılmıştır. Yapı olarak M52 motordakilerle aynıdır. Yalnız bunlar diğerlerine göre mekanik yapısı değiştirilerek daha küçük ve daha hafif yapılmışlardır.

M60 - M62 ateşleme bobinlerinin karşılaştırılması |
|
M62 motorlu tüm araçlarda taze hava emişli kompakt bir jeneratör vardır. (140A).
E31 araçlar için (bagajda iki akümülatör bulundurun!) Yüksek enerji sarfiyatı ile bununla bağlantılı yüksek durma akımı (SA vasıtasıyla telefon veya Bağımsız kalorifer olarak çalışır) gerektiğinde su soğutmalı 220A jeneratör gündeme gelir.
Özel sistem klima cihazı E39 da 3 kademeli elektrikli ilave fan gündeme gelir.
E31 ve E38 modellerinde araçta klima cihazı araçla birlikte verildiğinden, standarttır.
Ses optimizasyonu şimdiye kadarki modellerde iki kademeli idi, artık 3 kademeli duruma getirilmiştir. Herbir kademenin çalışma kriterleri yeni belirlenmiştir.
Çalışma kriterleri
Açma |
Kademe I |
-Kompresör-Kavraması aktif ve dış hava sıcaklığı > 10 o C. -Su sıcaklığı > 91 o C. |
Açma |
Kademe II |
-Ortalama basınç şalteri Presostat kapalı > 21 bar |
Açma |
Kademe III |
-Su sıcaklığı > 104 o C. (çift-sıcaklık şalterine ilave) |
Kapatma |
Kademe IV |
-Kompresör kavraması devre dışı -dış hava sıcaklığı < 8 o C. -Su sıcaklığı < 91 o C |
M60'larda Starter olarak, tüm versiyonlar için bir 12 V ön starter olarak Bosch firmasının 1,7 kW gücündeki cihaz kullanılmıştır.
E38 ve E39 modellerde akümülatör şarj destek noktası kabloları ve kablo uzatmaları yenidir. B+ kablosu motorun altından jeneratöre ve akümülatör şarj noktasına gider.
Akümülatör şarj destek noktası 5 - 8 silindirlerinin zincir kutusu kapağı üzerinde bulunur.
E31 lerde akümülatör şarj destek noktası önceden olduğu gibi yay ayağından sonra sağdadır.
Egzoz sistemi dirsekten çıkışa kadar komple paslanmaz çelikten imal edilmiştir ve alt dirsek flanşı da aynı şekilde paslanmazdan yapılmıştır.
Egzoz dirseği
M60 lardaki gibi M62 lerde de hava bölmesi izoleli saç-egzoz boğazı kullanılmaktadır.
Katalitik konvertör
Ön borular da aynı şekilde hava bölmesi izoleli çift cidarlı borulardır.
Katalitik konvertör çift kabartılı (hücreli) yapılmıştır ve egzoz hattı başına herbiri 2 trimetal (üç metal) kaplı (Platin, Paladyum, Rodyum), herbir egzoz hattı Seramik monoblok birimidir. Mümkün olan en düşük karşı basınca ulaşmak için monoblokun kesidi M73 lerinkiyle aynıdır.
Su dolaşım yapısı prensip olarak M60 motorları ile aynıdır.
Su pompası
Sirkülasyon pompası yapısı M60-motorlar ile aynıdır. Gövde aluminyum-pres dökümdür ve zincir kutusu kapağına vidalanmıştır. M60 dan farkı gövdede pompanın su sıcaklık sezicisinin bağlı olmasıdır. Bu çift sıcaklık algılayıcısı, soğutma sıvısının motordan dışarı çıktığı noktada bulunur.

Çift sıcaklık algılayıcılı su pompasının detay görünümü |
|
Motor soğutucu
M62 nin Radyatörü yapı olarak M60 motorunkilerle aynıdır.
Ülkelere göre değişen varyasyonlar için ilave olarak bir motor yağı soğutucusunun kullanımı öngörülmüştür.
Bu termostat su pompası gövdesi içine takılıdır.
E31 de, M62 motorda M60 dakiler gibi; havalandırma vanalı sabit termostat vardır. Bu, 85 o C. de açılır.
M62 motorlu E38 ve E39 serisi araçlarda bir yenilik; tanım alanı kumandalı termostat.
Geleneksel bir termostatın fonksiyonu
Motor soğutmanın geleneksel termostatla ayarı yalnızca soğutma sıvısının sıcaklığı tarafından tayin edilir. Bu ayarlama üç çalışma kademesinde yapılabilir:
Bu çalışma alanında (termostat ayar alanı) soğutma sıvısı sıcaklığı şimdi bir tanımlanan alan termostatının yardımı ile arzu edildiği gibi etkilenebilir.
Böylece de motorun kısmi yük alanında daha yüksek bir soğutma sıvısı sıcaklığının ayarlanması mümkündür. Kısmi yük alanında daha yüksek çalışma sıcaklıkları ile daha iyi yanmaya ve bunun sonucu olarak da daha az yakıt tüketimi ve zararlı madde emisyonuna ulaşılır.
Tam yük altında çalışılırken yüksek çalışma sıcaklıkları dezavantajları da beraberlerinde getirebilirler (Detonasyon nedeniyle ateşleme açısının geri alınması). Bu nedenle tam yük altında çalışılırken tanımlanan alan termostatının yardımı ile arzu edilen daha düşük soğutma sıvısı sıcaklıkları ayarlanabilir.

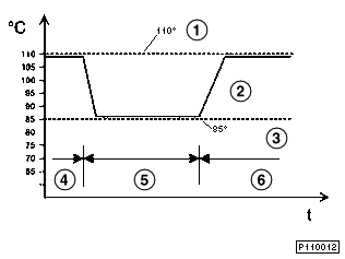
|
Tanımlanan alan soğutmanın ayar karakteristiği. |
|---|---|
1 |
Bir 110o C Termostatın karakteristiği |
2 |
Bir tanımlanmış alan termostatının karakteristiği. |
3 |
Bir 85o C Termostatın karakteristiği |
4 |
Kısmi yük alanı |
5 |
Tam yük alanı |
6 |
Kısmi yük alanı |
Böylece BMW dünyada ilk defa büyük tip motorlarda soğutma sıvısı sıcaklığını tanım alanlı kumandalı soğutma sistemi ile kumanda eden araçları üreten ilk otomobil üreticisidir. Bu termostatın yardımı ile kısmi yük alanında soğutma sıvısı sıcaklığının arzu edildiği gibi yükseltilmesi mümkündür. Soğutma sıvısı sıcaklığının yükseltilmesi ile motorun bu çalışma koşullarında yakıt tüketiminde bir düşüş sağlanır. Bu tanım alanlı termostatın ayarı, tanım alanına bağlı olarak DME M5.2 tarafından yapılır.
Bu tanımlanmış alan aşağıdaki faktörler tarafından tayin edilir:
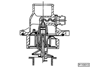
Tanımlanmış alan termostatının yapısı
Tanımlanmış alan termostatı entegre bir termostattır; yani termostat ile termostat kapağı bir birim oluştururlar.
Tanımlanmış alan termostatının prensipte mekanik olan yapısı geleneksel termostatın yapısıyla aynıdır. Ancak buna ilaveten genleşme elemanına (mum eleman) bir ısıtma elemanı entegre edilmiştir.

Tanımlanmış alan termostatının kesit resmi. |
|
Tanımlanmış alan termostatının termostat kapağı alüminyum dökümdür. Termostat kapağına ayrıca, termostat kapağının genleşme elemanına bağlanmış olan ısıtıcı eleman için elektrik bağlantısı entegre edilmiştir.

Isıtma elemanı için elektrik bağlantılı tanımlanmış alan termostatı. |
|
Tanımlanmış alan termostatının fonksiyonu
Tanımlanmış alan termostatı, entegre ısıtıcının müdahalesi olmadan soğutma sıvısının termostattaki 103o C'lık sıcaklığında açacak gibi tasarlanmıştır (Motor girişi). Soğutucu maddenin motorda ısınması ile motor çıkışının (DME ve panel gösterge için soğutma sıvısı sıcaklığı duyargasının montaj yeri) bu çalışma noktasında 110o C ölçülür. Bu, tanımlanmış alan termostatının bir ayar müdahalesi olmaksızın açmaya başladığı motor çalışma sıcaklığıdır.
DME kumanda cihazının ayar müdahalesi durumunda termostata entegre edilmiş olan ısıtma elemanına akım verilir (12 V). Genleşme elemanının ısıtılması sonucu termostat, ek bir ısıtma olmaksızın gerçekleşmiş gibi, daha düşük soğutma sıvısı sıcaklıklarında da açar (Termostat ayar alanı: yakl. 80o C - 103o C).

1 |
Termostatın açma yolu. |
2 |
Soğutma sıcaklığı |
3 |
Isıtıcı elemana 12 V ile kumanda edilmesi |
4 |
Isıtıcı elemana 0 V ile kumanda edilmesi |
Soğutma sıvısı sıcaklığı motor çıkışında 113o C'ı aşar ve böylece diğer parametrelerden bağımsız olarak tanımlanmış alan termostatının ısıtıcısı DME tarafından aktive edilir.
Teşhis
Tanımlanmış alan termostatının hat bağlantısı ve fonksiyonu DME kumanda cihazının teşhis sistemi tarafından denetlenir. Ortaya çıkan arızalar DME kumanda cihazının arıza hafızasına kaydedilir.
Soğutma sıvısı sıcaklık göstergesi
Soğutma sıvısı göstergesinin kombideki gösterge karakteristiği, motorun, tanımlanmış alan termostatına bağlı yüksek sıcaklık seviyesine uyarlanır.
Soğutma sıvısı sıcaklığı bildiriminin kombideki göstergesi,
75o C - 113o C
arasındaki soğutma sıvısı sıcaklıklarında orta seviyede bulunur.
Bosch firmasının M73 lerde yeni kullanılan Dijital Elektronik DME M5.2 Motoru, M62 motorlarda da kullanılacaktır. M60-Motorlarının DME M3.3 si yerine geçecektir.
DME nin yeni geliştirilen bu versiyonu, yukarıda sıralanan hedeflere ve herşeyden önce yeni Amerikan kanun hükümlerine (örneğin OBD II) uygundur. Özellikle Kaliforniya normları, egzoz emisyon değerleri için çok yüksek taleplerde bulunmaktadır.
Bu CARB-Fonksiyonları (Californian Air Ressource Board) DME M5.2 de sağlanmıştır.
Bu Amerikan pazarı için yapılan araç, diğer tüm araç üreticileri tarafından benimsenmiş, Onbord diyagnoz (OBD) bağlantı noktası teçhiz edilmiştir. Bu bağlantı noktası, resmi trafik kontrollarında her an diyagnoz hattı üzerinden OBD-uygunluğu bilgilerini DME-hata hafıza kaydından görülebilmesine imkan sağlar. Bu sınırlı hata kayıt bölgesine ani baskın, DME kumanda aletindeki entegre kodlamayı çalıştırır.
DME M5.2 nin önemli işaretleri:
Egzoz gazı sınır değerlerini kontrol altında tutmak için, Kaliforniya ve US kanun hükümleri, imalat esnasında tüm egzoz gaza uygun parçaların kullanımını talep etmektedir. Bunun için sağlıklı bir diyagnoz gerekliydi, ki bu yapıcı tanımını içerir. Egzoz gaz uygun değerlerinde hata meydana gelirse US-araçlarında DME tarafından kombide 'Motor Kontrol' lambası yanmasıyle kumanda edilir. Bunlar sürücüye motor sisteminde hata olduğunu bildirir, bu hata egzas gazı salınmasını etkiler ve bu yüzden yetkili bir servise gidilmesi gerekir.
Önemli OBDII-diyagnoz fonksiyonları:
OBD II nin diğer parçası, diğer bütün araç üreticileri için normlandırılmış kesişme noktasıdır. Bununla US-trafik kontrol memurları tarafından kumanda aletinden, egzoz gazı uygun değerleri hatası 'Scan-Tools' vasıtasıyla okunabilmektedir. Arıza hafızasına girilerek elde edilecek bilgiler, ilgililer için sadece egzos gazı hatalarını kapsar.
Fonksiyonların istisnaları ile
Bütün OBD II uygun değerleri-izleme fonksiyonları DME 5.2 kumanda aletinde de gerçekleşmiş olanlar, US pazarı için belirlenmemiştir. İlgililere hata kaydı imkanı sağlayan normlandırılmış OBD II kesişme noktaları, aynı şekilde sadece US-araçlarına takılmıştır.
Endüktif empülsiyon sezici yardımı ile artma çarkı üzerinde motor devir sayısı ölçülür. Devir sayısının belirlenmesine, ilave olarak M62 lerde (M73 benzeri) kesicinin tanımlanması gerçekleşir.
Ateşleme kesici tanımlaması için artma çarkı kumanda aleti dahilinde ateşleme aralığına uygun (8-Silindirli motorlarda herbir eksantrik mili devrinde 4 ateşleme sistemi) dört parçaya paylaştırılmıştır.
Kumanda aletinde herbir artma çarkı parçasının (T) periyod süresi ölçülür. Tüm silindirlerdeki yanma tamam ise bütün bu segmanların periyod süreleri eşit demektir. (T1 = T2 = T3 = T4).
Bir silindirde arıza olursa (ateşleme kesilirse), bu silindire isabet eden periyod zamanı kesinti parçaları mili saniyeler kadardır (bkz resim: T3 > T1, T2, T4). Bu segman zamanları kumanda aletinde istatistik olarak değerlendirilir.

|
Ateşleme kesicisinin çalışma prensibi |
|---|---|
1 |
Motor çalışması o.k. |
2 |
Ateşleme kesicisi bölüm T3 te |
Her bir tanım alanı noktası için uygun maksimum düzensiz çalışma değerleri, yani bir segmanın periyod süresindeki sapma, devir sayısının bir fonksiyonu olarak, yük ve motor sıcaklığı ortaya konur.
Onaylanan bu değerlerin dışına çıkıldığında o silindirde hata algılanır ve hafızaya kaydedilir. US-Araçlarında bu durum `Motor Kontrol'-Lambası yanarak aktif hale gelir.
Diğer önlemler olarak, katalitik konvertörün korunması için ilgili silindirin püskürtmesi aşırı ısınmadan önce kapatılır.
Uyum
Artma çarkının imalat toleransları, ateşleme kesme tanımlamasında fonksiyon hatalarına neden olabilir. Bu yüzden DME kendisi bir uyum sağlar.
Artma çarkının imalat toleransları, motor itişi esnasında ateşlemesiz ve püskürtmesiz adapte olur çünkü motor bu tarzda yanma esnasında dengesiz dönme oluşturur.
Servis için talimat:
Volan dişlisi veya DME-kumanda aleti değiştirildikten sonra test turunda yaklaşık 10 saniye motor itmede kalır, böylece volanın DME-kontrol ünitesine uyumu sağlanır.
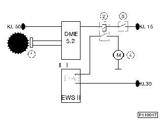
-CAN-Bus bağlantısı üzerinden dijital bilgi transferi şu kumanda aletleri arasında gerçekleşir.
Her iki motor hacmi versiyonunda Bosch ve Lucas marka küresel vana kullanılır.(M60 daki gibi)
M60 daki gibi M62 de de sıcak film tabaka hava miktarı ölçeri vardır.
M62 de Rölanti ayarı M60 daki gibi çift-sargılı döner ayar (ZWD 5) ile yapılır. ZWD 5 ile rölantide emilen hava, boğaz kelebeğinin karışım odasına girer.
Her katalitik konvertör önünde bir Lambda-Sezicisi takılıdır. US pazarı için M62-modelleri OBD II ye uygunluk için ikinci bir Lambda-sezicisi (Monitör sezicisi) her bir katalitik konvertörün sonuna ilave edilmiştir. Lamda-sezicileri M73-Motorlarınkiyle yapı olarak aynıdır. (Tip tarifi: Bosch LSH 25).
M62-Motor da da Vuruntu ayarı vardır. Vuruntu ayarı motorun vuruntulu çalışmasını önler. Vuruntu oluşması halinde ilgili silindirin ateşleme zamanını "geç" yöne doğru ayarlar çıkar.
4 vuruntu sezicisi motor bloğunun soğutma mantosunda, iki silindir sırası arasına cıvatalanmıştır. Bir sezici komşu iki silindiri denetleyecek şekilde ayarlanır. Vuruntu sezicisinin yapısı ve fonksiyonu M60 ın ki ile aynıdır.
M62 de çift sıcaklık sezicisi vardır.(M52 deki gibi) Bunlar motor kumanda sistemi ve kombi'deki uzaktan ısı kontrolu için bilgi verirler. Bunun için sezicilerde birbirinden ayrı iki farklı direnç değeri olan NTC-Pili takılmıştır.
Çift sıcaklık sezicisi motorun alın tarafına, su pompası gövdesinin içine takılmıştır.
Otomatik-Start Fonksiyonu, ilk çalıştırmada sürücüye konfor sağlamaya yarar. Motoru çalıştırmak için kontakt anahtarı sadece kısa süreli 'start' konumuna çevrilir (terminal 50). Term. 50 sinyali girişinden sonra DME-kumanda aletinde starter motoru motor çalışıncaya kadar devreye girer. Tüm M73-motorlu E38-Araçlarında bu fonksiyon vardır.
Artık tüm M62-motorlu E38- ve E39-Araçlarına özel donanım bağlantılı Otomatik şanzımanlı, otomatik-start takılacaktır.
Fonksiyon
Otomatik-Start Fonksiyonu ile starter rölesi artık doğrudan Term. 50 üzerinden devreye girmeyecektir. Term. 50 artık sadece DME 5.2 ye giriş sinyali göndermeye yarayacaktır.
Start sinyali (KL 50) verilmesiyle DME 5.2 kumanda aletine gelmesiyle ve EWS-kumanda aletinden doğru değiştirme kodu algılanmasıyla, DME otomatik start' üzerinden marş-rölesine kumanda eder. Bunun için vites kolu 'P' veya 'N' konumunda olması şarttır.
Starter-motoru, marş-rölesi üzerinden, eksantrik mil sezicisi `Motor çalışıyor' bilgisini algılamasına kadar devrede tutulur.
`"Motor çalışıyor" algılanır eğer motor devir sayısı... olana kadar
Start işlemi esnasında kısa süreli gaz verilir.
`Moütor çalışıyor' Sinyali alınmasıyla marş-rölesi DME-kumanda aletinden devre dışı olur. Motor çalışmaz ise, otomatik start işlemi DME den çıkan şasi sinyali ile 20 saniye sonra kesilir.

|
Fonksiyon devre şeması `Automatik-Start' |
|---|---|
1 |
Krank mili sezicisi |
2 |
Starter-Rölesi |
3 |
Şalter A-şanzıman (L2) |
Tüm M62-motorlu araçlar, seri olarak ASC+T ile donatılmıştır. ASC-Fonksiyonlarını gerçekleştirmek için M62-motorlarında da (M60 da olduğu gibi), bir Kumanda kablosu üzerinden ADS II ayar motoru ile ihtiyaca göre ayarlanan ön boğaz kelebeği vardır.
ADS II ayar motoru kumandası ABS/ASC-kumanda aleti üzerinden sağlanır. Diğer ASC-müdahaleleri ateşleme açısı ayarı gibi, ateşleme ve püskürtmeyi kısma gibi işlemleri DME-kumanda aleti üstlenir.
Motor-çekme-momenti ayarını (MSR) gerçekleştirmek için, M62-motorlarda da rölanti ayarlayıcısı (ZWD 5) kullanılır. Rölanti ayarlayıcısı, özellikle Motor-çekme-momenti ayarlayıcısı (MSR) devrede iken açılır. Bunun için, DME'den bir empülsiyon genişliği modülasyonlu sinyal elde eder.
ASC fonksiyonlarının kumandası için DME de gerekli bilgiler CAN-Bus üzerinden dağıtılır.